Building Summary

Data last updated on: 3/13/2026     Ownership current as of: 3/9/2026     Tax Year: 2026
REID 169946

PIN # 0852-90-1920

Location Address Property Description
1710 FLETCHERS CHAPEL RD ROTUND HLS/SEC:04/LT#16 PL:000053-000050
   
Property Owner Owner's Mailing Address
IGO-KNEASEL, EMILY GRACE;IGO-KNEASEL, KAYLA MCVOY
1710 FLETCHERS CHAPEL RD
DURHAM NC 27703
Parcel
Buildings
Misc Improvements
Land
Deeds
Notes
Sales
Photos
Map
Building Location Address
1710 FLETCHERS CHAPEL RD
Building Description
RESMS-RES-MS-OR-EQ
Card   of  1
Bldg Type RESIDENTIAL
Units 1
Living Area (SQFT) 1204
Number of Stories 1.00
Style RAN-RANCH
Foundation 04-P-FOOTING/CRWL-SP
Exterior 02-BRICK
Const Type
Heating 05-PACKAGE-HEAT/COOL
Air Cond
Plumbing Baths (Full):   2
Baths (Half):   0
Extra Fixtures:   0
Total Plumbing Fixtures:   6 
Bedrooms 3
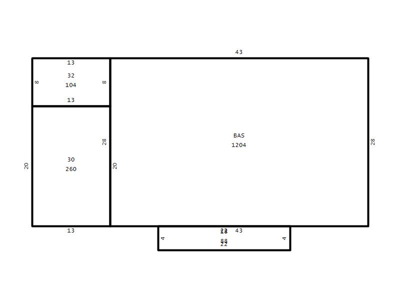
Main Body (SQFT) 1204
Year Built 1965
Additions 3
Effective Year 1965
Remodeled 0
Interior Adj.
Other Features
Building Total & Improvement Details

Grade C+15 115%
Percentage Complete 100
Total Adjusted Replacement Cost New $287,660
Physical Depreciation (% Bad) 0%
Depreciated Value $256,017
Economic Depreciation (% Bad) 0%
Functional Depreciation (% Bad) 0%
Total Depreciated Value $256,017
Market Area Factor 1.00
Building Value $256,017
Misc Improvements Value $276
Total Improvement Value $256,293

Assessed Land Value $91,250
   
Assessed Total Value $347,543



Addition Summary 
StoryTypeCodeArea
1.00 Covered Porch 18 88
1.00 Carport 30 260
1.00 Storage Utility 32 104
 
Other Improvements 
UnitsDescriptionItemCodeYear% BadValue
10x8 DIMENSIONS Concrete Slab 2000 45 276
 


Building Sketch
Photograph
Building Sketch Building Photo
(Click sketch for bigger image)




Copyright © 2022 Durham County, North Carolina.