Building Summary

Data last updated on: 1/30/2026     Ownership current as of: 1/16/2026     Tax Year: 2026
REID 169977

PIN # 0862-34-5413

Location Address Property Description
2120 PATTERSON RD PROP-ROGERS JOSEPH T & EV ELYN W PL:000072-000041
   
Property Owner Owner's Mailing Address
OPENDOOR PROPERTY TRUST I
1295 WEST WASHINGTON ST STE 115
TEMPE AZ 85281
Parcel
Buildings
Misc Improvements
Land
Deeds
Notes
Sales
Photos
Map
Building Location Address
2120 PATTERSON RD
Building Description
RESMS-RES-MS-OR-EQ
Card   of  1
Bldg Type RESIDENTIAL
Units 1
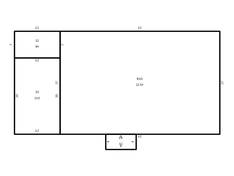
Living Area (SQFT) 1134
Number of Stories 1.00
Style RAN-RANCH
Foundation 04-P-FOOTING/CRWL-SP
Exterior 02-BRICK
Const Type
Heating 03-FORCED-HOT-AIR
Air Cond
Plumbing Baths (Full):   1
Baths (Half):   0
Extra Fixtures:   0
Total Plumbing Fixtures:   3 
Bedrooms 3
Main Body (SQFT) 1134
Year Built 1971
Additions 3
Effective Year 1971
Remodeled 0
Interior Adj.
Other Features
Building Total & Improvement Details

Grade D+ 85%
Percentage Complete 100
Total Adjusted Replacement Cost New $190,441
Physical Depreciation (% Bad) 0%
Depreciated Value $119,978
Economic Depreciation (% Bad) 0%
Functional Depreciation (% Bad) 0%
Total Depreciated Value $119,978
Market Area Factor 1.00
Building Value $119,978
Misc Improvements Value
Total Improvement Value $119,978

Assessed Land Value $98,750
   
Assessed Total Value $218,728



Addition Summary 
StoryTypeCodeArea
1.00 Covered Porch 18 32
1.00 Carport 30 240
1.00 Storage Utility 32 84
 
Other Improvements 
UnitsDescriptionItemCodeYear% BadValue
12x16 DIMENSIONS Shed Personal Property 2000 75
 


Building Sketch
Photograph
Building Sketch Building Photo
(Click sketch for bigger image)




Copyright © 2022 Durham County, North Carolina.