Building Summary

Data last updated on: 1/30/2026     Ownership current as of: 1/16/2026     Tax Year: 2026
REID 170028

PIN # 0862-79-2900

Location Address Property Description
5813 CHEEK RD PROP-HOLDER D E/LT#02 LT# 01 PT 1.OO OF 2.290 AC E PL:000028-000046
   
Property Owner Owner's Mailing Address
REYES, KARLA DAYANNE HERNANDEZ
5813 CHEEK RD
DURHAM NC 27704
Parcel
Buildings
Misc Improvements
Land
Deeds
Notes
Sales
Photos
Map
Building Location Address
5813 CHEEK RD
Building Description
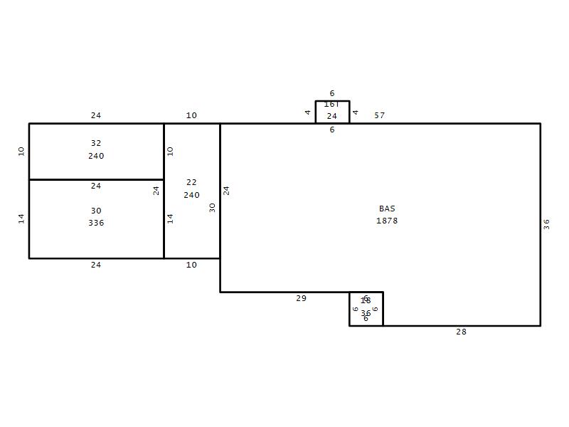
RESMS-RES-MS-OR-EQ
Card   of  1
Bldg Type RESIDENTIAL
Units 1
Living Area (SQFT) 1878
Number of Stories 1.00
Style RAN-RANCH
Foundation 04-P-FOOTING/CRWL-SP
Exterior 02-BRICK
Const Type
Heating 05-PACKAGE-HEAT/COOL
Air Cond
Plumbing Baths (Full):   2
Baths (Half):   0
Extra Fixtures:   0
Total Plumbing Fixtures:   6 
Bedrooms 3
Main Body (SQFT) 1878
Year Built 1962
Additions 5
Effective Year 1962
Remodeled 0
Interior Adj.
Other Features
Building Total & Improvement Details

Grade C+ 110%
Percentage Complete 100
Total Adjusted Replacement Cost New $401,657
Physical Depreciation (% Bad) 0%
Depreciated Value $224,928
Economic Depreciation (% Bad) 0%
Functional Depreciation (% Bad) 0%
Total Depreciated Value $224,928
Market Area Factor 1.00
Building Value $224,928
Misc Improvements Value $5,415
Total Improvement Value $230,343

Assessed Land Value $170,800
   
Assessed Total Value $401,143



Addition Summary 
StoryTypeCodeArea
1.00 Terrace/Raised Patio 16T 24
1.00 Covered Porch 18 36
1.00 Enclosed Porch 22 240
1.00 Carport 30 336
1.00 Storage Utility 32 240
 
Other Improvements 
UnitsDescriptionItemCodeYear% BadValue
20x16 DIMENSIONS Patio 1962 0 4465
21x18 DIMENSIONS Prefab Metal Car Shed 2000 50 950
16x12 DIMENSIONS Shed Personal Property 2001 75
 


Building Sketch
Photograph
Building Sketch Building Photo
(Click sketch for bigger image)




Copyright © 2022 Durham County, North Carolina.