Building Summary

Data last updated on: 1/30/2026     Ownership current as of: 1/16/2026     Tax Year: 2026
REID 170325

PIN # 0863-12-2385

Location Address Property Description
3311 REDWOOD RD PROP-HUDSON E O & VIRGINI A PL:000055-000133
   
Property Owner Owner's Mailing Address
LAZO, ESTEBAN J
307 PEBBLESTONE DR
DURHAM NC 27703
Parcel
Buildings
Misc Improvements
Land
Deeds
Notes
Sales
Photos
Map
Building Location Address
3311 REDWOOD RD
Building Description
RESMS-RES-MS-OR-EQ
Card   of  1
Bldg Type RESIDENTIAL
Units 1
Living Area (SQFT) 1316
Number of Stories 1.00
Style RAN-RANCH
Foundation 06-BASEMENT
Exterior 02-BRICK
Const Type
Heating 05-PACKAGE-HEAT/COOL
Air Cond
Plumbing Baths (Full):   1
Baths (Half):   1
Extra Fixtures:   0
Total Plumbing Fixtures:   5 
Bedrooms 3
Main Body (SQFT) 1316
Year Built 1967
Additions 4
Effective Year 1967
Remodeled 0
Interior Adj.
Other Features
Building Total & Improvement Details

Grade C+ 110%
Percentage Complete 100
Total Adjusted Replacement Cost New $339,738
Physical Depreciation (% Bad) 0%
Depreciated Value $207,240
Economic Depreciation (% Bad) 0%
Functional Depreciation (% Bad) 0%
Total Depreciated Value $207,240
Market Area Factor 1.00
Building Value $207,240
Misc Improvements Value $9,068
Total Improvement Value $216,308

Assessed Land Value $123,125
   
Assessed Total Value $339,433



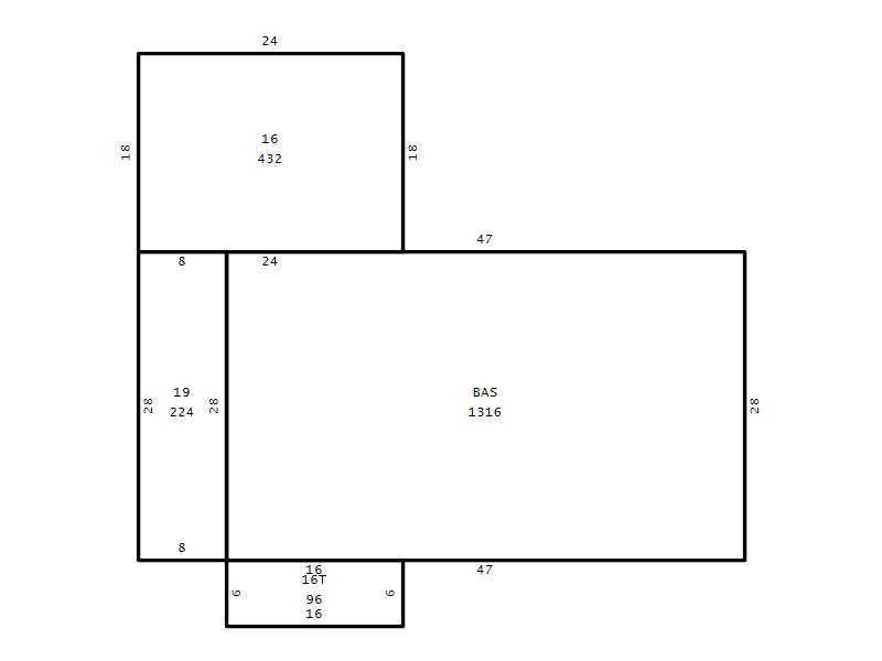
Addition Summary 
StoryTypeCodeArea
1.00 Frame Deck 16 432
1.00 Terrace/Raised Patio 16T 96
1.00 Screen Porch 19 224
1.00 Unfinished Basement 10 1316
 
Other Improvements 
UnitsDescriptionItemCodeYear% BadValue
440 SIZE Garage Frame 1960 75 5867
18x20 DIMENSIONS Storage Building 2000 75 1580
21x32 DIMENSIONS Prefab Metal Car Shed 2000 50 1621
 


Building Sketch
Photograph
Building Sketch Building Photo
(Click sketch for bigger image)




Copyright © 2022 Durham County, North Carolina.