Building Summary

Data last updated on: 4/1/2026     Ownership current as of: 3/27/2026     Tax Year: 2026
REID 170741

PIN # 0852-78-6284

Location Address Property Description
2528 BARWICK DR GLEN FOREST/SEC:02/LT#009 & 010 PL:000052-000056
   
Property Owner Owner's Mailing Address
MARTINEZ, JORGE ENRIQUE MARTINEZ;GOMEZ, DANNA S MARTINEZ
2528 BARWICK DR
DURHAM NC 27704
Parcel
Buildings
Misc Improvements
Land
Deeds
Notes
Sales
Photos
Map
Building Location Address
2528 BARWICK DR
Building Description
RESFR-RES-FRM-OR-EQ
Card   of  1
Bldg Type RESIDENTIAL
Units 1
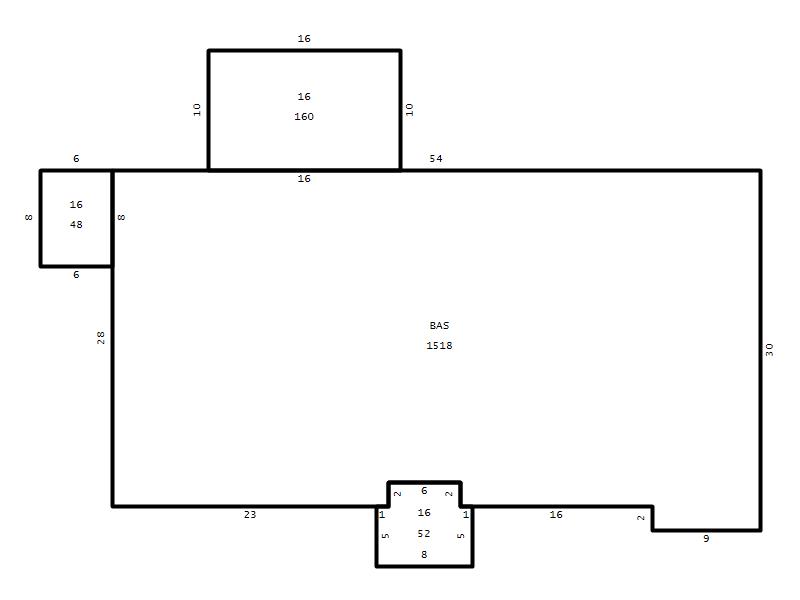
Living Area (SQFT) 1518
Number of Stories 1.00
Style RAN-RANCH
Foundation 04-P-FOOTING/CRWL-SP
Exterior 08-VINYL/ALUMINUM
Const Type
Heating 05-PACKAGE-HEAT/COOL
Air Cond
Plumbing Baths (Full):   2
Baths (Half):   0
Extra Fixtures:   0
Total Plumbing Fixtures:   6 
Bedrooms 3
Main Body (SQFT) 1518
Year Built 1960
Additions 3
Effective Year 1960
Remodeled 0
Interior Adj.
Other Features
Building Total & Improvement Details

Grade C- 95%
Percentage Complete 100
Total Adjusted Replacement Cost New $255,073
Physical Depreciation (% Bad) 0%
Depreciated Value $140,290
Economic Depreciation (% Bad) 0%
Functional Depreciation (% Bad) 0%
Total Depreciated Value $140,290
Market Area Factor 1.00
Building Value $140,290
Misc Improvements Value
Total Improvement Value $140,290

Assessed Land Value $91,250
   
Assessed Total Value $231,540



Addition Summary 
StoryTypeCodeArea
1.00 Frame Deck 16 160
1.00 Frame Deck 16 48
1.00 Frame Deck 16 52
 
Other Improvements 
UnitsDescriptionItemCodeYear% BadValue
8x12 DIMENSIONS Shed Personal Property 2000 75
 


Building Sketch
Photograph
Building Sketch Building Photo
(Click sketch for bigger image)




Copyright © 2022 Durham County, North Carolina.