Building Summary

Data last updated on: 4/1/2026     Ownership current as of: 3/27/2026     Tax Year: 2026
REID 170747

PIN # 0852-77-6538

Location Address Property Description
4103 CHEEK RD GLEN FOREST/SEC:01/LT#188 -189 INCL PL:000052-000013
   
Property Owner Owner's Mailing Address
AMAYA, OSCAR ARNULFO MARTINEZ
4103 CHEEK RD
DURHAM NC 27704
Parcel
Buildings
Misc Improvements
Land
Deeds
Notes
Sales
Photos
Map
Building Location Address
4103 CHEEK RD
Building Description
RESMS-RES-MS-OR-EQ
Card   of  1
Bldg Type RESIDENTIAL
Units 1
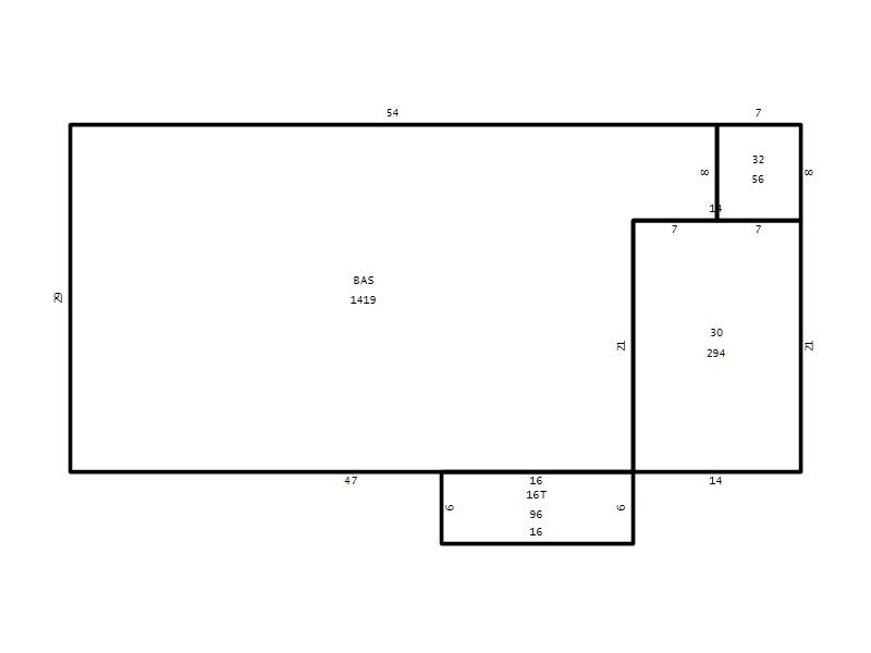
Living Area (SQFT) 1419
Number of Stories 1.00
Style RAN-RANCH
Foundation 04-P-FOOTING/CRWL-SP
Exterior 02-BRICK
Const Type
Heating 05-PACKAGE-HEAT/COOL
Air Cond
Plumbing Baths (Full):   2
Baths (Half):   0
Extra Fixtures:   0
Total Plumbing Fixtures:   6 
Bedrooms 3
Main Body (SQFT) 1419
Year Built 1972
Additions 3
Effective Year 1972
Remodeled 0
Interior Adj.
Other Features
Building Total & Improvement Details

Grade C+ 110%
Percentage Complete 100
Total Adjusted Replacement Cost New $298,746
Physical Depreciation (% Bad) 0%
Depreciated Value $277,834
Economic Depreciation (% Bad) 0%
Functional Depreciation (% Bad) 0%
Total Depreciated Value $277,834
Market Area Factor 1.00
Building Value $277,834
Misc Improvements Value
Total Improvement Value $277,834

Assessed Land Value $92,500
   
Assessed Total Value $370,334



Addition Summary 
StoryTypeCodeArea
1.00 Terrace/Raised Patio 16T 96
1.00 Carport 30 294
1.00 Storage Utility 32 56
 
Other Improvements 
UnitsDescriptionItemCodeYear% BadValue
12x8 DIMENSIONS Shed Personal Property 2003 75
 


Building Sketch
Photograph
Building Sketch Building Photo
(Click sketch for bigger image)




Copyright © 2022 Durham County, North Carolina.