Building Summary

Data last updated on: 4/1/2026     Ownership current as of: 3/27/2026     Tax Year: 2026
REID 170772

PIN # 0852-69-5087

Location Address Property Description
2576 CHADWICK PL GLEN FOREST/SEC:02/LT#144 & 145 PL:000052-000056
   
Property Owner Owner's Mailing Address
PEREZ, FILIBERTO ESPINOSA;MARTINEZ, CLEOFAS CRUZ
2576 CHADWICK PL
DURHAM NC 27704
Parcel
Buildings
Misc Improvements
Land
Deeds
Notes
Sales
Photos
Map
Building Location Address
2576 CHADWICK PL
Building Description
RESMS-RES-MS-OR-EQ
Card   of  1
Bldg Type RESIDENTIAL
Units 1
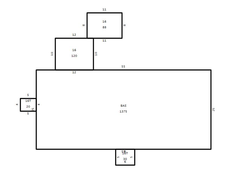
Living Area (SQFT) 1375
Number of Stories 1.00
Style RAN-RANCH
Foundation 04-P-FOOTING/CRWL-SP
Exterior 02-BRICK
Const Type
Heating 05-PACKAGE-HEAT/COOL
Air Cond
Plumbing Baths (Full):   2
Baths (Half):   0
Extra Fixtures:   0
Total Plumbing Fixtures:   6 
Bedrooms 3
Main Body (SQFT) 1375
Year Built 1973
Additions 4
Effective Year 1973
Remodeled 0
Interior Adj.
Other Features
Building Total & Improvement Details

Grade C 100%
Percentage Complete 100
Total Adjusted Replacement Cost New $266,245
Physical Depreciation (% Bad) 0%
Depreciated Value $170,397
Economic Depreciation (% Bad) 0%
Functional Depreciation (% Bad) 0%
Total Depreciated Value $170,397
Market Area Factor 1.00
Building Value $170,397
Misc Improvements Value $18,095
Total Improvement Value $188,492

Assessed Land Value $91,250
   
Assessed Total Value $279,742



Addition Summary 
StoryTypeCodeArea
1.00 Frame Deck 16 120
1.00 Terrace/Raised Patio 16T 20
1.00 Terrace/Raised Patio 16T 30
1.00 Frame Deck 16 88
 
Other Improvements 
UnitsDescriptionItemCodeYear% BadValue
24x28 DIMENSIONS Garage Frame 2000 45 17980
8x14 DIMENSIONS Lean To 2003 75 115
12x14 DIMENSIONS Shed Personal Property 2004 75
 


Building Sketch
Photograph
Building Sketch Building Photo
(Click sketch for bigger image)




Copyright © 2022 Durham County, North Carolina.