Building Summary

Data last updated on: 4/1/2026     Ownership current as of: 3/27/2026     Tax Year: 2026
REID 170798

PIN # 0852-68-4742

Location Address Property Description
2567 CHADWICK PL GLEN FOREST/SEC:02/LT#166 -167-168NKA RECOMB LT#02 PL:000162-000140
   
Property Owner Owner's Mailing Address
DORAIS, BRIAN;DUBE, PATRICIA MARILYN
2567 CHADWICK PL
DURHAM NC 27704
Parcel
Buildings
Misc Improvements
Land
Deeds
Notes
Sales
Photos
Map
Building Location Address
2567 CHADWICK PL
Building Description
RESFR-RES-FRM-OR-EQ
Card   of  1
Bldg Type RESIDENTIAL
Units 1
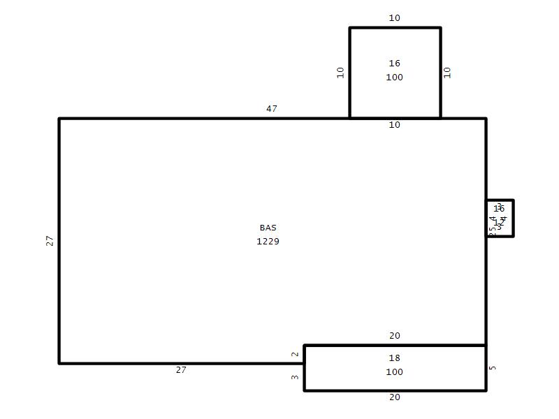
Living Area (SQFT) 1229
Number of Stories 1.00
Style RAN-RANCH
Foundation 04-P-FOOTING/CRWL-SP
Exterior 08-VINYL/ALUMINUM
Const Type
Heating 06-HEAT-PUMP
Air Cond
Plumbing Baths (Full):   2
Baths (Half):   0
Extra Fixtures:   0
Total Plumbing Fixtures:   6 
Bedrooms 3
Main Body (SQFT) 1229
Year Built 2004
Additions 3
Effective Year 2004
Remodeled 0
Interior Adj.
Other Features
Building Total & Improvement Details

Grade C- 95%
Percentage Complete 100
Total Adjusted Replacement Cost New $223,834
Physical Depreciation (% Bad) 0%
Depreciated Value $179,067
Economic Depreciation (% Bad) 0%
Functional Depreciation (% Bad) 0%
Total Depreciated Value $179,067
Market Area Factor 1.00
Building Value $179,067
Misc Improvements Value $26,382
Total Improvement Value $205,449

Assessed Land Value $102,500
   
Assessed Total Value $307,949



Addition Summary 
StoryTypeCodeArea
1.00 Frame Deck 16 100
1.00 Covered Porch 18 100
1.00 Frame Deck 16 12
 
Other Improvements 
UnitsDescriptionItemCodeYear% BadValue
24x32 DIMENSIONS Garage Frame 2008 30 26382
 


Building Sketch
Photograph
Building Sketch Building Photo
(Click sketch for bigger image)




Copyright © 2022 Durham County, North Carolina.