Building Summary

Data last updated on: 4/2/2026     Ownership current as of: 3/30/2026     Tax Year: 2026
REID 170958

PIN # 0852-18-9762

Location Address Property Description
2519 DOVETAIL DR CARPENTER POINTE/PH:1/LT# 29 PL:000153-000279
   
Property Owner Owner's Mailing Address
HESS, ERIC;WALTON, HALEY
2519 DOVETAIL DR
DURHAM NC 27704
Parcel
Buildings
Misc Improvements
Land
Deeds
Notes
Sales
Photos
Map
Building Location Address
2519 DOVETAIL DR
Building Description
RESFR-RES-FRM-OR-EQ
Card   of  1
Bldg Type RESIDENTIAL
Units 1
Living Area (SQFT) 1392
Number of Stories 2.00
Style CON-CONVENTIONAL
Foundation 04-P-FOOTING/CRWL-SP
Exterior 01-WOOD-PANEL
Const Type
Heating 06-HEAT-PUMP
Air Cond
Plumbing Baths (Full):   2
Baths (Half):   1
Extra Fixtures:   0
Total Plumbing Fixtures:   8 
Bedrooms 3
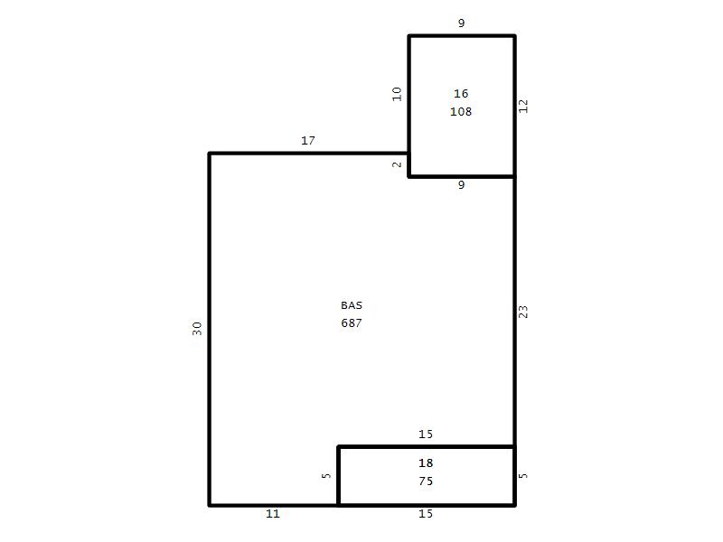
Main Body (SQFT) 687
Year Built 2002
Additions 4
Effective Year 2002
Remodeled 0
Interior Adj.
Other Features
Building Total & Improvement Details

Grade C+15 115%
Percentage Complete 100
Total Adjusted Replacement Cost New $297,899
Physical Depreciation (% Bad) 0%
Depreciated Value $253,214
Economic Depreciation (% Bad) 0%
Functional Depreciation (% Bad) 0%
Total Depreciated Value $253,214
Market Area Factor 1.00
Building Value $253,214
Misc Improvements Value
Total Improvement Value $253,214

Assessed Land Value $81,250
   
Assessed Total Value $334,464



Addition Summary 
StoryTypeCodeArea
1.00 Frame Deck 16 108
1.00 Covered Porch 18 75
1.00 Covered Porch 18 75
1.00 Res Frame 2Nd Flr FR02 705
 
Other Improvements 
 


Building Sketch
Photograph
Building Sketch Building Photo
(Click sketch for bigger image)




Copyright © 2022 Durham County, North Carolina.