Building Summary

Data last updated on: 4/2/2026     Ownership current as of: 3/30/2026     Tax Year: 2026
REID 107229

PIN # 0820-67-8933

Location Address Property Description
2505 OTIS ST HILLSIDE PARK/SEC:02/BLK: A/LT#06 PL:000040-000062
   
Property Owner Owner's Mailing Address
RAYMOND, NICOLAS
80 HOPELAND DR
LILLINGTON NC 27546
Parcel
Buildings
Misc Improvements
Land
Deeds
Notes
Sales
Photos
Map
Building Location Address
2505 OTIS ST
Building Description
RESMS-RES-MS-OR-EQ
Card   of  1
Bldg Type RESIDENTIAL
Units 1
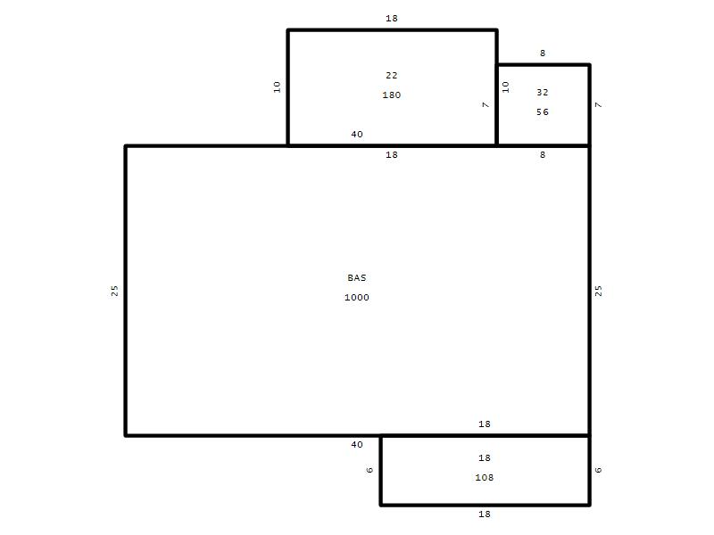
Living Area (SQFT) 1000
Number of Stories 1.00
Style RAN-RANCH
Foundation 04-P-FOOTING/CRWL-SP
Exterior 02-BRICK
Const Type
Heating 05-PACKAGE-HEAT/COOL
Air Cond
Plumbing Baths (Full):   1
Baths (Half):   0
Extra Fixtures:   0
Total Plumbing Fixtures:   3 
Bedrooms 3
Main Body (SQFT) 1000
Year Built 1960
Additions 3
Effective Year 1960
Remodeled 0
Interior Adj.
Other Features
Building Total & Improvement Details

Grade C 100%
Percentage Complete 100
Total Adjusted Replacement Cost New $221,753
Physical Depreciation (% Bad) 0%
Depreciated Value $121,964
Economic Depreciation (% Bad) 0%
Functional Depreciation (% Bad) 0%
Total Depreciated Value $121,964
Market Area Factor 1.00
Building Value $121,964
Misc Improvements Value $2,795
Total Improvement Value $124,759

Assessed Land Value $101,500
   
Assessed Total Value $226,259



Addition Summary 
StoryTypeCodeArea
1.00 Covered Porch 18 108
1.00 Enclosed Porch 22 180
1.00 Storage Utility 32 56
 
Other Improvements 
UnitsDescriptionItemCodeYear% BadValue
8x10 DIMENSIONS Shed (Open Pole) 1961 75 139
20x22 DIMENSIONS Carport w/Floor 1961 75 2656
 


Building Sketch
Photograph
Building Sketch Building Photo
(Click sketch for bigger image)




Copyright © 2022 Durham County, North Carolina.