Building Summary

Data last updated on: 1/29/2026     Ownership current as of: 1/16/2026     Tax Year: 2026
REID 171384

PIN # 0854-43-2928

Location Address Property Description
3814 HAMLIN RD PROP-GUERRANT IRENE V PL:000134-000013
   
Property Owner Owner's Mailing Address
WHITT, KEDAN;WHITT, CHRISTINA R
3814 HAMLIN RD
DURHAM NC 27704
Parcel
Buildings
Misc Improvements
Land
Deeds
Notes
Sales
Photos
Map
Building Location Address
3814 HAMLIN RD
Building Description
RESFR-RES-FRM-OR-EQ
Card   of  1
Bldg Type RESIDENTIAL
Units 1
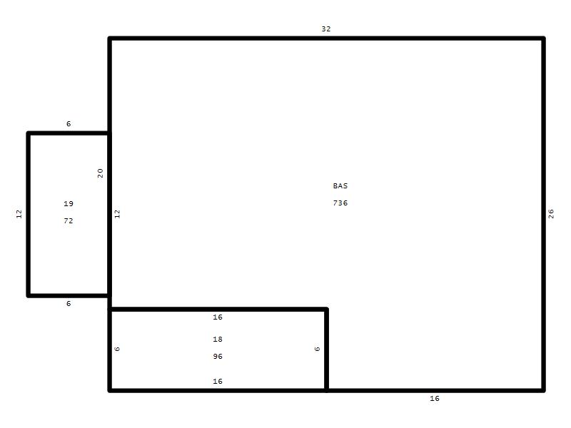
Living Area (SQFT) 736
Number of Stories 1.00
Style RAN-RANCH
Foundation 04-P-FOOTING/CRWL-SP
Exterior 08-VINYL/ALUMINUM
Const Type
Heating 03-FORCED-HOT-AIR
Air Cond
Plumbing Baths (Full):   1
Baths (Half):   0
Extra Fixtures:   0
Total Plumbing Fixtures:   3 
Bedrooms 2
Main Body (SQFT) 736
Year Built 1958
Additions 2
Effective Year 1958
Remodeled 0
Interior Adj.
Other Features
Building Total & Improvement Details

Grade D+ 85%
Percentage Complete 100
Total Adjusted Replacement Cost New $137,198
Physical Depreciation (% Bad) 0%
Depreciated Value $102,898
Economic Depreciation (% Bad) 0%
Functional Depreciation (% Bad) 0%
Total Depreciated Value $102,898
Market Area Factor 1.00
Building Value $102,898
Misc Improvements Value $1,610
Total Improvement Value $104,508

Assessed Land Value $130,900
   
Assessed Total Value $235,408



Addition Summary 
StoryTypeCodeArea
1.00 Covered Porch 18 96
1.00 Screen Porch 19 72
 
Other Improvements 
UnitsDescriptionItemCodeYear% BadValue
19x10 DIMENSIONS Lean To 1958 75 151
19x10 DIMENSIONS Lean To 1958 75 151
820 SIZE Shed (Open Pole) 1958 75 1308
 


Building Sketch
Photograph
Building Sketch Building Photo
(Click sketch for bigger image)




Copyright © 2022 Durham County, North Carolina.