Building Summary

Data last updated on: 4/2/2026     Ownership current as of: 3/30/2026     Tax Year: 2026
REID 171635

PIN # 0833-54-7189

Location Address Property Description
405 PINELAND AVE RIDDLE PRK/SEC:02/LT#31 PL:000124-000014
   
Property Owner Owner's Mailing Address
BAF ASSETS 2 LLC
3903 S CONGRESS AVE STE 40298
AUSTIN TX 78704
Parcel
Buildings
Misc Improvements
Land
Deeds
Notes
Sales
Photos
Map
Building Location Address
405 PINELAND AVE
Building Description
RESFR-RES-FRM-OR-EQ
Card   of  1
Bldg Type RESIDENTIAL
Units 1
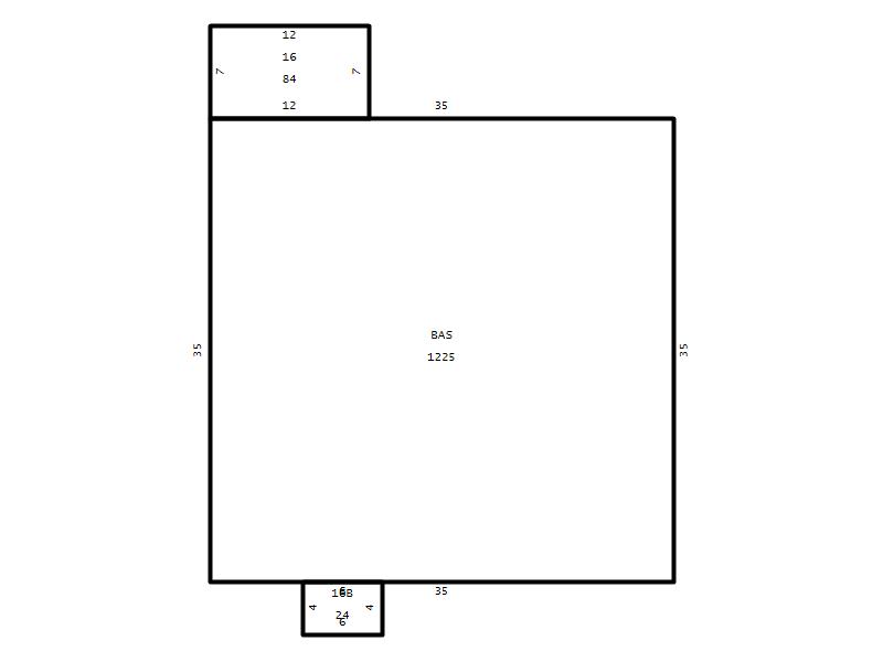
Living Area (SQFT) 1225
Number of Stories 1.00
Style RAN-RANCH
Foundation 03-CONTINOUS-SLAB
Exterior 08-VINYL/ALUMINUM
Const Type
Heating 05-PACKAGE-HEAT/COOL
Air Cond
Plumbing Baths (Full):   1
Baths (Half):   0
Extra Fixtures:   0
Total Plumbing Fixtures:   3 
Bedrooms 3
Main Body (SQFT) 1225
Year Built 1991
Additions 2
Effective Year 1991
Remodeled 0
Interior Adj.
Other Features
Building Total & Improvement Details

Grade C- 95%
Percentage Complete 100
Total Adjusted Replacement Cost New $203,718
Physical Depreciation (% Bad) 0%
Depreciated Value $199,644
Economic Depreciation (% Bad) 0%
Functional Depreciation (% Bad) 0%
Total Depreciated Value $199,644
Market Area Factor 1.00
Building Value $199,644
Misc Improvements Value $111
Total Improvement Value $199,755

Assessed Land Value $71,250
   
Assessed Total Value $271,005



Addition Summary 
StoryTypeCodeArea
1.00 Frame Deck 16 84
1.00 Concrete Slab 16B 24
 
Other Improvements 
UnitsDescriptionItemCodeYear% BadValue
6x8 DIMENSIONS Shed (Open Pole) 1991 75 111
 


Building Sketch
Photograph
Building Sketch Building Photo
(Click sketch for bigger image)




Copyright © 2022 Durham County, North Carolina.