Building Summary

Data last updated on: 4/1/2026     Ownership current as of: 3/27/2026     Tax Year: 2026
REID 171773

PIN # 0833-53-4649

Location Address Property Description
418 CRAVEN ST RIDDLE PRK/SEC:01/LT#21 PL:000122-000122
   
Property Owner Owner's Mailing Address
FIGUEROA, NORMAN ALEXANDER FIGUEROA;ESCOBAR, KEYDI FAVIANA FIGUEROA
418 CRAVEN ST
DURHAM NC 27704
Parcel
Buildings
Misc Improvements
Land
Deeds
Notes
Sales
Photos
Map
Building Location Address
418 CRAVEN ST
Building Description
RESFR-RES-FRM-OR-EQ
Card   of  1
Bldg Type RESIDENTIAL
Units 1
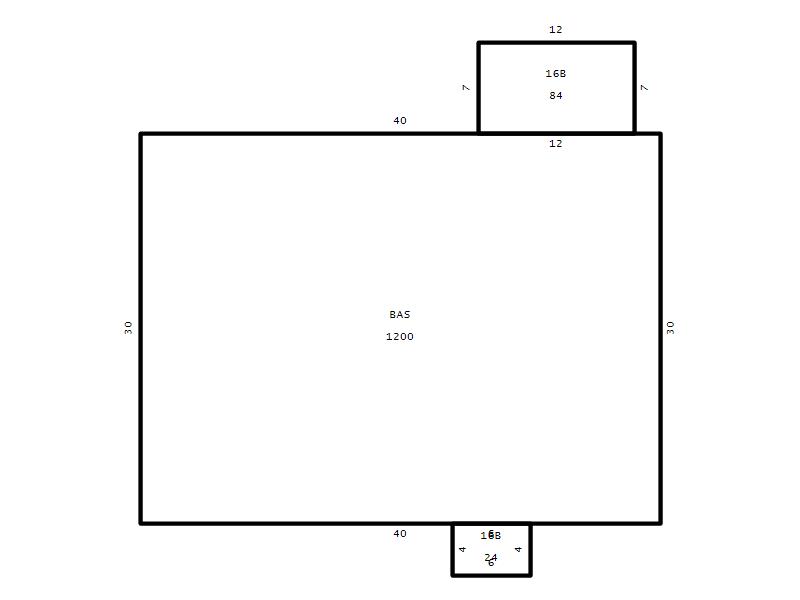
Living Area (SQFT) 1200
Number of Stories 1.00
Style RAN-RANCH
Foundation 03-CONTINOUS-SLAB
Exterior 09-HARD-B/CEMENTBRD
Const Type
Heating 03-FORCED-HOT-AIR
Air Cond
Plumbing Baths (Full):   2
Baths (Half):   0
Extra Fixtures:   0
Total Plumbing Fixtures:   6 
Bedrooms 3
Main Body (SQFT) 1200
Year Built 1990
Additions 2
Effective Year 1990
Remodeled 0
Interior Adj.
Other Features
Building Total & Improvement Details

Grade C- 95%
Percentage Complete 100
Total Adjusted Replacement Cost New $196,462
Physical Depreciation (% Bad) 0%
Depreciated Value $141,453
Economic Depreciation (% Bad) 0%
Functional Depreciation (% Bad) 0%
Total Depreciated Value $141,453
Market Area Factor 1.00
Building Value $141,453
Misc Improvements Value $480
Total Improvement Value $141,933

Assessed Land Value $75,625
   
Assessed Total Value $217,558



Addition Summary 
StoryTypeCodeArea
1.00 Concrete Slab 16B 24
1.00 Concrete Slab 16B 84
 
Other Improvements 
UnitsDescriptionItemCodeYear% BadValue
12x18 DIMENSIONS Shed (Open Pole) 1990 75 480
 


Building Sketch
Photograph
Building Sketch Building Photo
(Click sketch for bigger image)




Copyright © 2022 Durham County, North Carolina.