Building Summary

Data last updated on: 3/31/2026     Ownership current as of: 3/26/2026     Tax Year: 2026
REID 171784

PIN # 0833-53-2492

Location Address Property Description
200 DENVER AVE RIDDLE PRK/SEC:03/LT#46 PL:000123-000171
   
Property Owner Owner's Mailing Address
TBR, SFR RALEIGH OWNER 1 LP
PO BOX 4900`
SCOTTSDALE AZ 85261
Parcel
Buildings
Misc Improvements
Land
Deeds
Notes
Sales
Photos
Map
Building Location Address
200 DENVER AVE
Building Description
RESFR-RES-FRM-OR-EQ
Card   of  1
Bldg Type RESIDENTIAL
Units 1
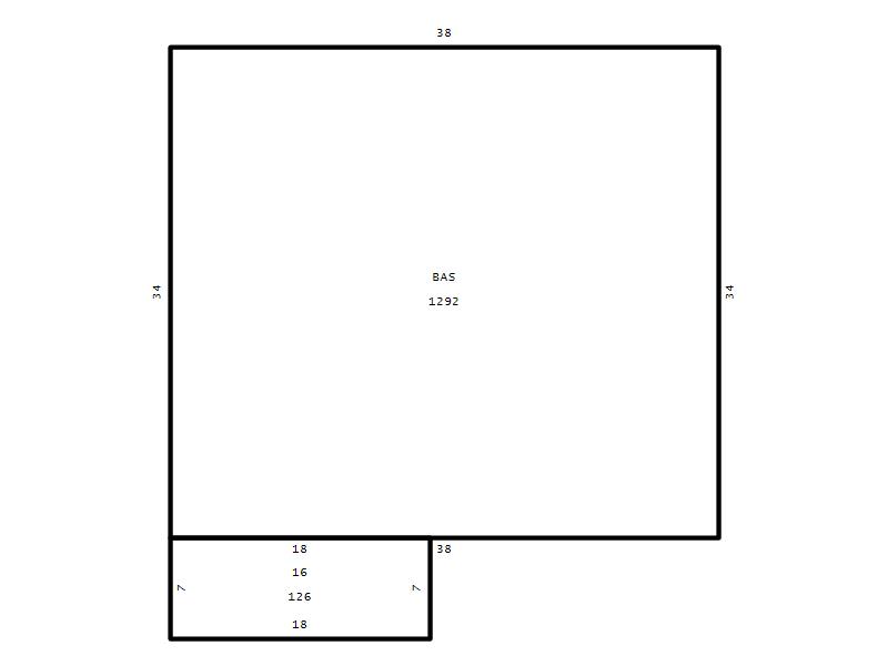
Living Area (SQFT) 1292
Number of Stories 1.00
Style RAN-RANCH
Foundation 03-CONTINOUS-SLAB
Exterior 08-VINYL/ALUMINUM
Const Type
Heating 06-HEAT-PUMP
Air Cond
Plumbing Baths (Full):   2
Baths (Half):   0
Extra Fixtures:   0
Total Plumbing Fixtures:   6 
Bedrooms 3
Main Body (SQFT) 1292
Year Built 1991
Additions 1
Effective Year 1991
Remodeled 0
Interior Adj.
Other Features
Building Total & Improvement Details

Grade C- 95%
Percentage Complete 100
Total Adjusted Replacement Cost New $213,978
Physical Depreciation (% Bad) 0%
Depreciated Value $203,279
Economic Depreciation (% Bad) 0%
Functional Depreciation (% Bad) 0%
Total Depreciated Value $203,279
Market Area Factor 1.00
Building Value $203,279
Misc Improvements Value
Total Improvement Value $203,279

Assessed Land Value $71,250
   
Assessed Total Value $274,529



Addition Summary 
StoryTypeCodeArea
1.00 Frame Deck 16 126
 
Other Improvements 
 


Building Sketch
Photograph
Building Sketch Building Photo
(Click sketch for bigger image)




Copyright © 2022 Durham County, North Carolina.