Building Summary

Data last updated on: 4/2/2026     Ownership current as of: 3/30/2026     Tax Year: 2026
REID 172273

PIN # 0833-28-9075

Location Address Property Description
6 NEW BEDFORD CT VLGINDPK 2/JEF/PH:01/LT#0 3 PL:000155-000359
   
Property Owner Owner's Mailing Address
FLORES, SAILY;COUTRIER, TERRELL S
6 NEW BEDFORD CT
DURHAM NC 27704
Parcel
Buildings
Misc Improvements
Land
Deeds
Notes
Sales
Photos
Map
Building Location Address
6 NEW BEDFORD CT
Building Description
RESFR-RES-FRM-OR-EQ
Card   of  1
Bldg Type RESIDENTIAL
Units 1
Living Area (SQFT) 1998
Number of Stories 2.00
Style CON-CONVENTIONAL
Foundation 04-P-FOOTING/CRWL-SP
Exterior 08-VINYL/ALUMINUM
Const Type
Heating 05-PACKAGE-HEAT/COOL
Air Cond
Plumbing Baths (Full):   2
Baths (Half):   1
Extra Fixtures:   0
Total Plumbing Fixtures:   8 
Bedrooms 4
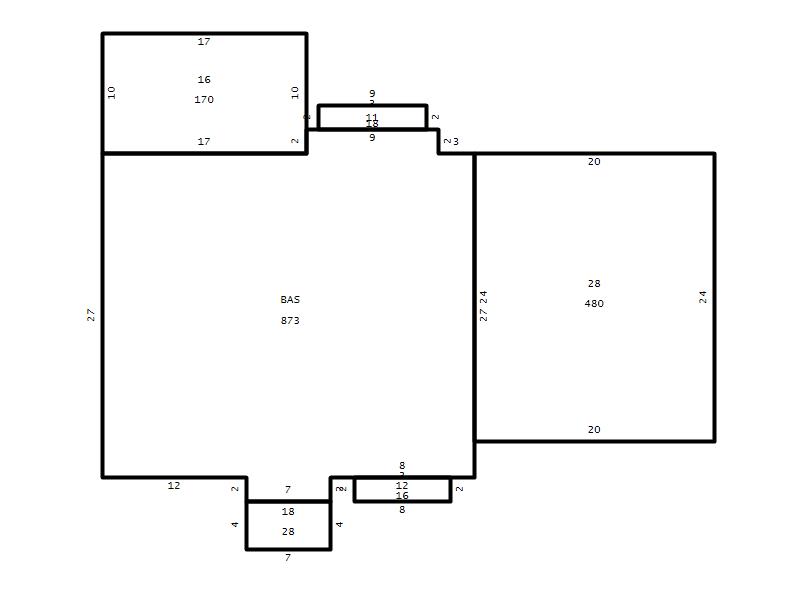
Main Body (SQFT) 873
Year Built 2002
Additions 7
Effective Year 2002
Remodeled 0
Interior Adj.
Other Features
Building Total & Improvement Details

Grade B-5 115%
Percentage Complete 100
Total Adjusted Replacement Cost New $407,814
Physical Depreciation (% Bad) 0%
Depreciated Value $333,233
Economic Depreciation (% Bad) 0%
Functional Depreciation (% Bad) 0%
Total Depreciated Value $333,233
Market Area Factor 1.00
Building Value $333,233
Misc Improvements Value
Total Improvement Value $333,233

Assessed Land Value $77,400
   
Assessed Total Value $410,633



Addition Summary 
StoryTypeCodeArea
1.00 Bay Window 03 18
1.00 Covered Porch 18 28
1.00 Garage 28 480
1.00 Frame Deck 16 170
1.00 Bay Window 03 16
1.00 Res Frame 2Nd Flr FR02 851
1.00 Res Frm 2Nd Flr Over Garg FR02 240
 
Other Improvements 
 


Building Sketch
Photograph
Building Sketch Building Photo
(Click sketch for bigger image)




Copyright © 2022 Durham County, North Carolina.