Building Summary

Data last updated on: 4/2/2026     Ownership current as of: 3/30/2026     Tax Year: 2026
REID 172296

PIN # 0833-38-0366

Location Address Property Description
505 FANNING WAY VLGINDPK 2/JEF/PH:01/LT#5 3 PL:000155-000359
   
Property Owner Owner's Mailing Address
2024-1 IH BORROWER LP
5420 LBJ FREEWAY STE 600
DALLAS TX 75240
Parcel
Buildings
Misc Improvements
Land
Deeds
Notes
Sales
Photos
Map
Building Location Address
505 FANNING WAY
Building Description
RESFR-RES-FRM-OR-EQ
Card   of  1
Bldg Type RESIDENTIAL
Units 1
Living Area (SQFT) 1978
Number of Stories 2.00
Style CON-CONVENTIONAL
Foundation 04-P-FOOTING/CRWL-SP
Exterior 08-VINYL/ALUMINUM
Const Type
Heating 05-PACKAGE-HEAT/COOL
Air Cond
Plumbing Baths (Full):   2
Baths (Half):   1
Extra Fixtures:   0
Total Plumbing Fixtures:   8 
Bedrooms 3
Main Body (SQFT) 840
Year Built 2005
Additions 7
Effective Year 2005
Remodeled 0
Interior Adj.
Other Features
Building Total & Improvement Details

Grade B-5 115%
Percentage Complete 100
Total Adjusted Replacement Cost New $408,818
Physical Depreciation (% Bad) 0%
Depreciated Value $331,143
Economic Depreciation (% Bad) 0%
Functional Depreciation (% Bad) 0%
Total Depreciated Value $331,143
Market Area Factor 1.00
Building Value $331,143
Misc Improvements Value $938
Total Improvement Value $332,081

Assessed Land Value $71,400
   
Assessed Total Value $403,481



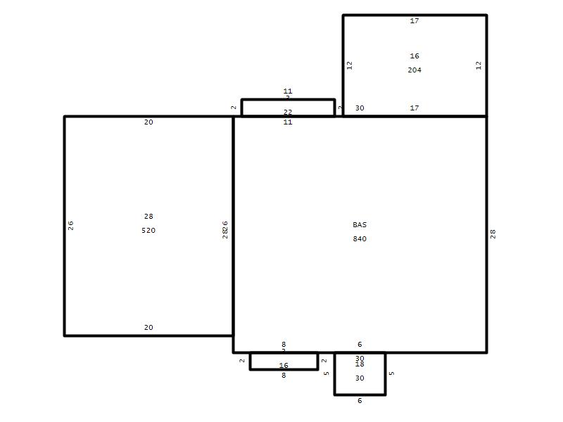
Addition Summary 
StoryTypeCodeArea
1.00 Bay Window 03 22
1.00 Frame Deck 16 204
1.00 Covered Porch 18 30
1.00 Garage 28 520
1.00 Bay Window 03 16
1.00 Res Frame 2Nd Flr FR02 840
1.00 Res Frm 2Nd Flr Over Garg FR02 260
 
Other Improvements 
UnitsDescriptionItemCodeYear% BadValue
8x11 DIMENSIONS Patio 2000 45 938
 


Building Sketch
Photograph
Building Sketch Building Photo
(Click sketch for bigger image)




Copyright © 2022 Durham County, North Carolina.