Building Summary

Data last updated on: 4/2/2026     Ownership current as of: 3/30/2026     Tax Year: 2026
REID 172861

PIN # 0824-60-4440

Location Address Property Description
612 SANDERSON DR HORTON HILLS/SEC:01/LT#02 5 PL:000107-000022
   
Property Owner Owner's Mailing Address
ALTO ASSET COMPANY 3 LLC
3903 S CONGRESS AVE STE 40298
AUSTIN TX 78704
Parcel
Buildings
Misc Improvements
Land
Deeds
Notes
Sales
Photos
Map
Building Location Address
612 SANDERSON DR
Building Description
RESFR-RES-FRM-OR-EQ
Card   of  1
Bldg Type RESIDENTIAL
Units 1
Living Area (SQFT) 1370
Number of Stories 2.00
Style COL-COLONIAL
Foundation 04-P-FOOTING/CRWL-SP
Exterior 09-HARD-B/CEMENTBRD
Const Type
Heating 05-PACKAGE-HEAT/COOL
Air Cond
Plumbing Baths (Full):   2
Baths (Half):   1
Extra Fixtures:   0
Total Plumbing Fixtures:   8 
Bedrooms 3
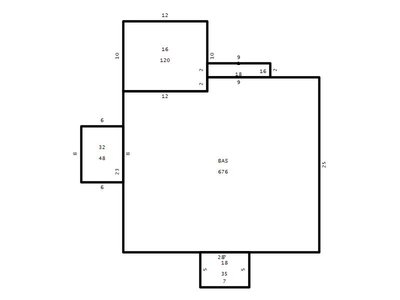
Main Body (SQFT) 676
Year Built 1985
Additions 5
Effective Year 1985
Remodeled 0
Interior Adj.
Other Features
Building Total & Improvement Details

Grade C+ 110%
Percentage Complete 100
Total Adjusted Replacement Cost New $282,609
Physical Depreciation (% Bad) 0%
Depreciated Value $197,826
Economic Depreciation (% Bad) 0%
Functional Depreciation (% Bad) 0%
Total Depreciated Value $197,826
Market Area Factor 1.00
Building Value $197,826
Misc Improvements Value
Total Improvement Value $197,826

Assessed Land Value $114,300
   
Assessed Total Value $312,126



Addition Summary 
StoryTypeCodeArea
1.00 Overhang 01 18
1.00 Frame Deck 16 120
1.00 Covered Porch 18 35
1.00 Storage Utility 32 48
1.00 Res Frame 2Nd Flr FR02 676
 
Other Improvements 
 


Building Sketch
Photograph
Building Sketch Building Photo
(Click sketch for bigger image)




Copyright © 2022 Durham County, North Carolina.