Building Summary

Data last updated on: 4/2/2026     Ownership current as of: 3/30/2026     Tax Year: 2026
REID 172868

PIN # 0824-60-0714

Location Address Property Description
702 SANDERSON DR HORTON HILLS/SEC:03/LT#08 3 PL:000115-000097
   
Property Owner Owner's Mailing Address
SMITH, DARRELL F JR;COLEMAN, ELIZABETH
702 SANDERSON DR
DURHAM NC 27704
Parcel
Buildings
Misc Improvements
Land
Deeds
Notes
Sales
Photos
Map
Building Location Address
702 SANDERSON DR
Building Description
RESFR-RES-FRM-OR-EQ
Card   of  1
Bldg Type RESIDENTIAL
Units 1
Living Area (SQFT) 1295
Number of Stories 1.00
Style RAN-RANCH
Foundation 04-P-FOOTING/CRWL-SP
Exterior 09-HARD-B/CEMENTBRD
Const Type
Heating 05-PACKAGE-HEAT/COOL
Air Cond
Plumbing Baths (Full):   2
Baths (Half):   0
Extra Fixtures:   0
Total Plumbing Fixtures:   6 
Bedrooms 3
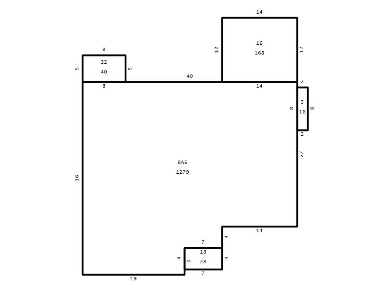
Main Body (SQFT) 1279
Year Built 1992
Additions 4
Effective Year 1992
Remodeled 0
Interior Adj.
Other Features
Building Total & Improvement Details

Grade C+ 110%
Percentage Complete 100
Total Adjusted Replacement Cost New $270,710
Physical Depreciation (% Bad) 0%
Depreciated Value $197,618
Economic Depreciation (% Bad) 0%
Functional Depreciation (% Bad) 0%
Total Depreciated Value $197,618
Market Area Factor 1.00
Building Value $197,618
Misc Improvements Value
Total Improvement Value $197,618

Assessed Land Value $115,200
   
Assessed Total Value $312,818



Addition Summary 
StoryTypeCodeArea
1.00 Storage Utility 32 40
1.00 Bay Window 03 16
1.00 Frame Deck 16 168
1.00 Covered Porch 18 28
 
Other Improvements 
UnitsDescriptionItemCodeYear% BadValue
8x10 DIMENSIONS Shed Personal Property 2000 75
 


Building Sketch
Photograph
Building Sketch Building Photo
(Click sketch for bigger image)




Copyright © 2022 Durham County, North Carolina.