Building Summary

Data last updated on: 4/2/2026     Ownership current as of: 3/30/2026     Tax Year: 2026
REID 172929

PIN # 0823-59-4950

Location Address Property Description
705 VALLEY DR HORTON HILLS/SEC:02/LT#13 4 PL:000115-000157
   
Property Owner Owner's Mailing Address
HISERODT, JULIA MARIE
705 VALLEY DR
DURHAM NC 27704
Parcel
Buildings
Misc Improvements
Land
Deeds
Notes
Sales
Photos
Map
Building Location Address
705 VALLEY DR
Building Description
RESFR-RES-FRM-OR-EQ
Card   of  1
Bldg Type RESIDENTIAL
Units 1
Living Area (SQFT) 1564
Number of Stories 2.00
Style CAP-CAPE-COD
Foundation 04-P-FOOTING/CRWL-SP
Exterior 09-HARD-B/CEMENTBRD
Const Type
Heating 05-PACKAGE-HEAT/COOL
Air Cond
Plumbing Baths (Full):   2
Baths (Half):   1
Extra Fixtures:   0
Total Plumbing Fixtures:   8 
Bedrooms 3
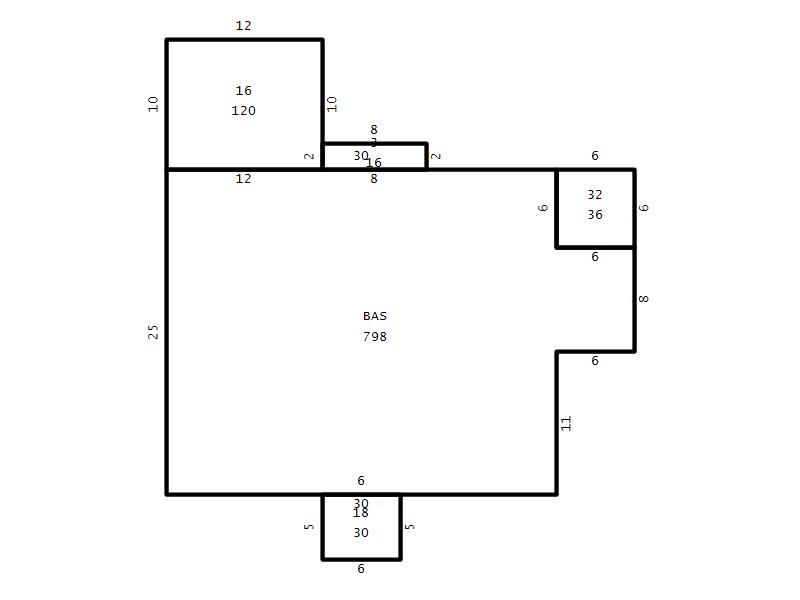
Main Body (SQFT) 798
Year Built 1993
Additions 5
Effective Year 1993
Remodeled 0
Interior Adj.
Other Features
Building Total & Improvement Details

Grade C+ 110%
Percentage Complete 100
Total Adjusted Replacement Cost New $304,803
Physical Depreciation (% Bad) 0%
Depreciated Value $225,554
Economic Depreciation (% Bad) 0%
Functional Depreciation (% Bad) 0%
Total Depreciated Value $225,554
Market Area Factor 1.00
Building Value $225,554
Misc Improvements Value
Total Improvement Value $225,554

Assessed Land Value $115,200
   
Assessed Total Value $340,754



Addition Summary 
StoryTypeCodeArea
1.00 Bay Window 03 16
1.00 Frame Deck 16 120
1.00 Covered Porch 18 30
1.00 Storage Utility 32 36
1.00 Res Frame 2Nd Flr FR02 750
 
Other Improvements 
UnitsDescriptionItemCodeYear% BadValue
8x12 DIMENSIONS Shed Personal Property 2003 75
 


Building Sketch
Photograph
Building Sketch Building Photo
(Click sketch for bigger image)




Copyright © 2022 Durham County, North Carolina.