Building Summary

Data last updated on: 4/2/2026     Ownership current as of: 3/30/2026     Tax Year: 2026
REID 172957

PIN # 0823-49-8934

Location Address Property Description
725 VALLEY DR HORTON HILLS/SEC:05/LT#01 8 PL:000139-000105
   
Property Owner Owner's Mailing Address
VILKAS, JONAS MARIUS;LEI, YUXIU
725 VALLEY DR
DURHAM NC 27704
Parcel
Buildings
Misc Improvements
Land
Deeds
Notes
Sales
Photos
Map
Building Location Address
725 VALLEY DR
Building Description
RESFR-RES-FRM-OR-EQ
Card   of  1
Bldg Type RESIDENTIAL
Units 1
Living Area (SQFT) 1696
Number of Stories 2.00
Style CON-CONVENTIONAL
Foundation 03-CONTINOUS-SLAB
Exterior 08-VINYL/ALUMINUM
Const Type
Heating 05-PACKAGE-HEAT/COOL
Air Cond
Plumbing Baths (Full):   2
Baths (Half):   1
Extra Fixtures:   0
Total Plumbing Fixtures:   8 
Bedrooms 3
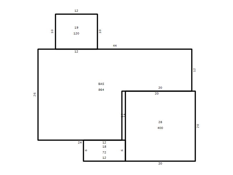
Main Body (SQFT) 864
Year Built 1998
Additions 5
Effective Year 1998
Remodeled 0
Interior Adj.
Other Features
Building Total & Improvement Details

Grade C+ 110%
Percentage Complete 100
Total Adjusted Replacement Cost New $340,397
Physical Depreciation (% Bad) 0%
Depreciated Value $258,702
Economic Depreciation (% Bad) 0%
Functional Depreciation (% Bad) 0%
Total Depreciated Value $258,702
Market Area Factor 1.00
Building Value $258,702
Misc Improvements Value
Total Improvement Value $258,702

Assessed Land Value $140,400
   
Assessed Total Value $399,102



Addition Summary 
StoryTypeCodeArea
1.00 Covered Porch 18 72
1.00 Screen Porch 19 120
1.00 Garage 28 400
1.00 Res Frame 2Nd Flr FR02 552
1.00 Res Frm 2Nd Flr Over Garg FR02 280
 
Other Improvements 
 


Building Sketch
Photograph
Building Sketch Building Photo
(Click sketch for bigger image)




Copyright © 2022 Durham County, North Carolina.