Building Summary

Data last updated on: 4/2/2026     Ownership current as of: 3/30/2026     Tax Year: 2026
REID 173086

PIN # 0824-40-3742

Location Address Property Description
2801 WARREN ST HORTON HILLS/SEC:09/LT#11 4 PL:000151-000195
   
Property Owner Owner's Mailing Address
HENGEN, ELIZABETH WELLIVER;HENGEN, JOSHUA SCOTT WELLIVER
3775 GUESS RD UNIT 17
DURHAM NC 27705
Parcel
Buildings
Misc Improvements
Land
Deeds
Notes
Sales
Photos
Map
Building Location Address
2801 WARREN ST
Building Description
RESFR-RES-FRM-OR-EQ
Card   of  1
Bldg Type RESIDENTIAL
Units 1
Living Area (SQFT) 1510
Number of Stories 1.00
Style RAN-RANCH
Foundation 03-CONTINOUS-SLAB
Exterior 08-VINYL/ALUMINUM
Const Type
Heating 05-PACKAGE-HEAT/COOL
Air Cond
Plumbing Baths (Full):   2
Baths (Half):   0
Extra Fixtures:   0
Total Plumbing Fixtures:   6 
Bedrooms 3
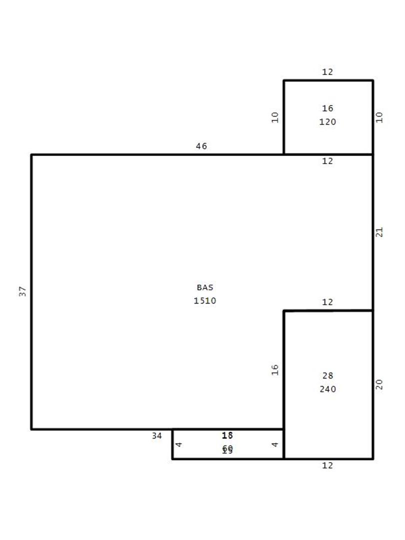
Main Body (SQFT) 1510
Year Built 2002
Additions 3
Effective Year 2002
Remodeled 0
Interior Adj.
Other Features
Building Total & Improvement Details

Grade C+ 110%
Percentage Complete 100
Total Adjusted Replacement Cost New $298,977
Physical Depreciation (% Bad) 0%
Depreciated Value $236,192
Economic Depreciation (% Bad) 0%
Functional Depreciation (% Bad) 0%
Total Depreciated Value $236,192
Market Area Factor 1.00
Building Value $236,192
Misc Improvements Value
Total Improvement Value $236,192

Assessed Land Value $104,400
   
Assessed Total Value $340,592



Addition Summary 
StoryTypeCodeArea
1.00 Garage 28 240
1.00 Frame Deck 16 120
1.00 Covered Porch 18 60
 
Other Improvements 
 


Building Sketch
Photograph
Building Sketch Building Photo
(Click sketch for bigger image)




Copyright © 2022 Durham County, North Carolina.