Building Summary

Data last updated on: 4/2/2026     Ownership current as of: 3/30/2026     Tax Year: 2026
REID 173124

PIN # 0824-41-8422

Location Address Property Description
812 WOODGREEN DR HORTON HILLS/SEC:09/PH:02 /LT#211 PL:000157-000033
   
Property Owner Owner's Mailing Address
WALLACE, PIPER E;WAGNER, MEGAN A
81 WOODGREEN DR
DURHAM NC 27704
Parcel
Buildings
Misc Improvements
Land
Deeds
Notes
Sales
Photos
Map
Building Location Address
812 WOODGREEN DR
Building Description
RESFR-RES-FRM-OR-EQ
Card   of  1
Bldg Type RESIDENTIAL
Units 1
Living Area (SQFT) 2220
Number of Stories 2.00
Style CON-CONVENTIONAL
Foundation 03-CONTINOUS-SLAB
Exterior 08-VINYL/ALUMINUM
Const Type
Heating 05-PACKAGE-HEAT/COOL
Air Cond
Plumbing Baths (Full):   2
Baths (Half):   1
Extra Fixtures:   0
Total Plumbing Fixtures:   8 
Bedrooms 3
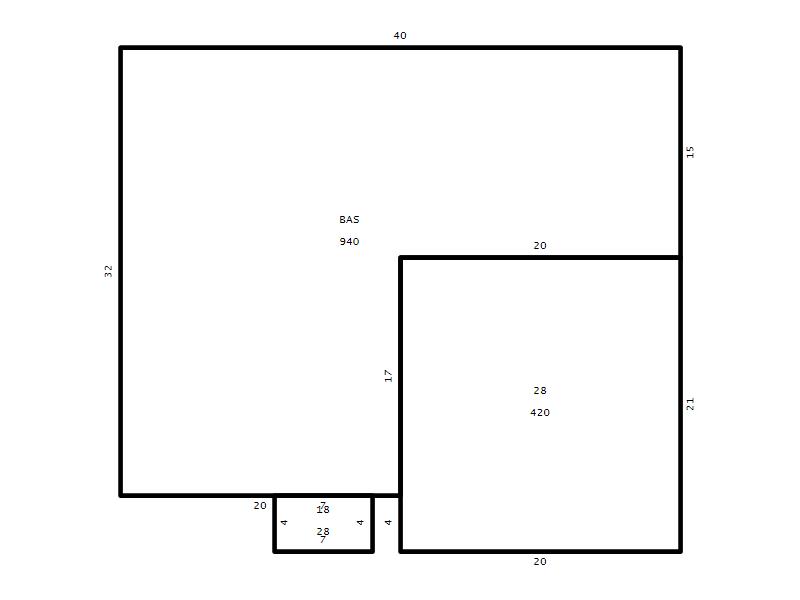
Main Body (SQFT) 940
Year Built 2003
Additions 4
Effective Year 2003
Remodeled 0
Interior Adj.
Other Features
Building Total & Improvement Details

Grade C+ 110%
Percentage Complete 100
Total Adjusted Replacement Cost New $395,421
Physical Depreciation (% Bad) 0%
Depreciated Value $316,337
Economic Depreciation (% Bad) 0%
Functional Depreciation (% Bad) 0%
Total Depreciated Value $316,337
Market Area Factor 1.00
Building Value $316,337
Misc Improvements Value
Total Improvement Value $316,337

Assessed Land Value $117,900
   
Assessed Total Value $434,237



Addition Summary 
StoryTypeCodeArea
1.00 Covered Porch 18 28
1.00 Garage 28 420
1.00 Res Frame 2Nd Flr FR02 940
1.00 Res Frm 2Nd Flr Over Garg FR02 340
 
Other Improvements 
 


Building Sketch
Photograph
Building Sketch Building Photo
(Click sketch for bigger image)




Copyright © 2022 Durham County, North Carolina.