Building Summary

Data last updated on: 4/2/2026     Ownership current as of: 3/30/2026     Tax Year: 2026
REID 173125

PIN # 0824-41-7427

Location Address Property Description
2902 MOORGATE AVE HORTON HILLS/SEC:09/PH:02 /LT#228 PL:000157-000033
   
Property Owner Owner's Mailing Address
HUGHES, PARKER
2902 MOORGATE AVE
DURHAM NC 27704
Parcel
Buildings
Misc Improvements
Land
Deeds
Notes
Sales
Photos
Map
Building Location Address
2902 MOORGATE AVE
Building Description
RESFR-RES-FRM-OR-EQ
Card   of  1
Bldg Type RESIDENTIAL
Units 1
Living Area (SQFT) 1704
Number of Stories 2.00
Style CON-CONVENTIONAL
Foundation 03-CONTINOUS-SLAB
Exterior 08-VINYL/ALUMINUM
Const Type
Heating 05-PACKAGE-HEAT/COOL
Air Cond
Plumbing Baths (Full):   2
Baths (Half):   1
Extra Fixtures:   0
Total Plumbing Fixtures:   8 
Bedrooms 3
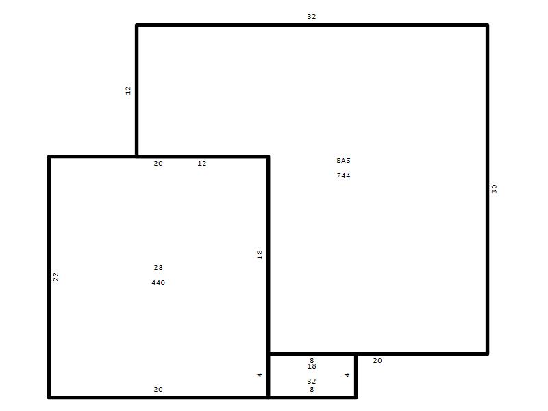
Main Body (SQFT) 744
Year Built 2003
Additions 4
Effective Year 2003
Remodeled 0
Interior Adj.
Other Features
Building Total & Improvement Details

Grade C+ 110%
Percentage Complete 100
Total Adjusted Replacement Cost New $334,752
Physical Depreciation (% Bad) 0%
Depreciated Value $267,802
Economic Depreciation (% Bad) 0%
Functional Depreciation (% Bad) 0%
Total Depreciated Value $267,802
Market Area Factor 1.00
Building Value $267,802
Misc Improvements Value
Total Improvement Value $267,802

Assessed Land Value $104,400
   
Assessed Total Value $372,202



Addition Summary 
StoryTypeCodeArea
1.00 Covered Porch 18 32
1.00 Garage 28 440
1.00 Res Frame 2Nd Flr FR02 744
1.00 Res Frm 2Nd Flr Over Garg FR02 216
 
Other Improvements 
 


Building Sketch
Photograph
Building Sketch Building Photo
(Click sketch for bigger image)




Copyright © 2022 Durham County, North Carolina.