Building Summary

Data last updated on: 4/3/2026     Ownership current as of: 3/30/2026     Tax Year: 2026
REID 100767

PIN # 0822-45-4905

Location Address Property Description
1304 CLARENDON ST THE SUBURBAN L&P CO/BLK:5 4/LT#17 PL:000018-000431
   
Property Owner Owner's Mailing Address
1304-1308 CLARENDON LLC
3225 MCLEOD DR STE 100
LAS VEGAS NV 89121
Parcel
Buildings
Misc Improvements
Land
Deeds
Notes
Sales
Photos
Map
Building Location Address
1304 CLARENDON ST
Building Description
MULFR-BLT-2/3-MLT-FR
Card   of  1
Bldg Type RESIDENTIAL
Units 1
Living Area (SQFT) 2128
Number of Stories 2.00
Style SEM-S-DTCH-VERT-SPLT
Foundation 04-P-FOOTING/CRWL-SP
Exterior 01-WOOD-PANEL
Const Type
Heating 06-HEAT-PUMP
Air Cond
Plumbing Baths (Full):   2
Baths (Half):   0
Extra Fixtures:   0
Total Plumbing Fixtures:   6 
Bedrooms 4
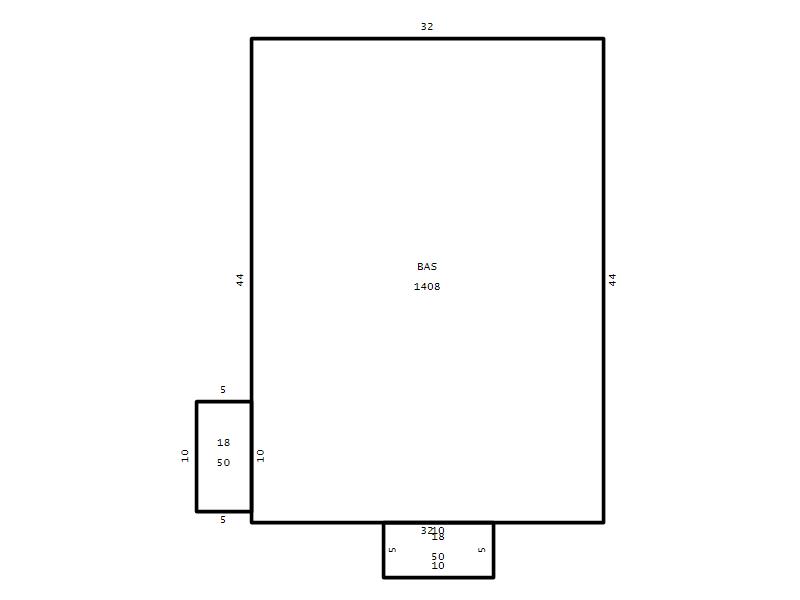
Main Body (SQFT) 1408
Year Built 1940
Additions 3
Effective Year 1940
Remodeled 0
Interior Adj.
Other Features
Building Total & Improvement Details

Grade C+15 115%
Percentage Complete 100
Total Adjusted Replacement Cost New $385,599
Physical Depreciation (% Bad) 0%
Depreciated Value $212,079
Economic Depreciation (% Bad) 35%
Functional Depreciation (% Bad) 0%
Total Depreciated Value $137,851
Market Area Factor 1.00
Building Value $137,851
Misc Improvements Value
Total Improvement Value $137,851

Assessed Land Value $246,500
   
Assessed Total Value $384,351



Addition Summary 
StoryTypeCodeArea
1.00 Covered Porch 18 50
1.00 Covered Porch 18 50
1.00 Res Frame 2Nd Flr FR02 720
 
Other Improvements 
 


Building Sketch
Photograph
Building Sketch Building Photo
(Click sketch for bigger image)




Copyright © 2022 Durham County, North Carolina.