Building Summary

Data last updated on: 3/13/2026     Ownership current as of: 3/9/2026     Tax Year: 2026
REID 176133

PIN # 0803-85-7634

Location Address Property Description
939 CLARION DR ARCHER WOODS/SEC:03/BLK:B /LT#12 PL:000069-000008
   
Property Owner Owner's Mailing Address
THOMAS, ELIZABETH;THOMAS, ZACHARY
939 CLARION DR
DURHAM NC 27705
Parcel
Buildings
Misc Improvements
Land
Deeds
Notes
Sales
Photos
Map
Building Location Address
939 CLARION DR
Building Description
RESMS-RES-MS-OR-EQ
Card   of  1
Bldg Type RESIDENTIAL
Units 1
Living Area (SQFT) 2076
Number of Stories 1.00
Style BTS-BI/TRI/SPLT-LEVL
Foundation 04-P-FOOTING/CRWL-SP
Exterior 02-BRICK
Const Type
Heating 05-PACKAGE-HEAT/COOL
Air Cond
Plumbing Baths (Full):   2
Baths (Half):   1
Extra Fixtures:   0
Total Plumbing Fixtures:   8 
Bedrooms 3
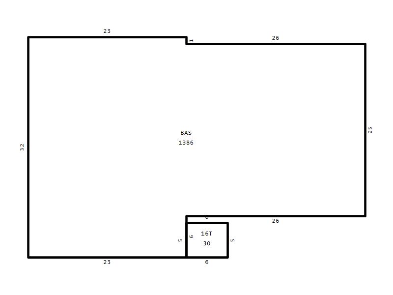
Main Body (SQFT) 1386
Year Built 1971
Additions 2
Effective Year 1971
Remodeled 0
Interior Adj.
Other Features
Building Total & Improvement Details

Grade C+5 105%
Percentage Complete 100
Total Adjusted Replacement Cost New $351,989
Physical Depreciation (% Bad) 0%
Depreciated Value $221,753
Economic Depreciation (% Bad) 0%
Functional Depreciation (% Bad) 0%
Total Depreciated Value $221,753
Market Area Factor 1.00
Building Value $221,753
Misc Improvements Value $468
Total Improvement Value $222,221

Assessed Land Value $165,375
   
Assessed Total Value $387,596



Addition Summary 
StoryTypeCodeArea
1.00 Terrace/Raised Patio 16T 30
1.00 Lower Living Area LL 690
 
Other Improvements 
UnitsDescriptionItemCodeYear% BadValue
10x10 DIMENSIONS Storage Building 1972 75 468
 


Building Sketch
Photograph
Building Sketch Building Photo
(Click sketch for bigger image)




Copyright © 2022 Durham County, North Carolina.