Building Summary

Data last updated on: 3/13/2026     Ownership current as of: 3/9/2026     Tax Year: 2026
REID 176140

PIN # 0803-85-6302

Location Address Property Description
4424 SUNNY CT ARCHER WOODS/SEC:04/BLK:B /LT#05 PL:000069-000061
   
Property Owner Owner's Mailing Address
BRYANT, MIYA;BRYANT, PHILLIP
4424 SUNNY CT
DURHAM NC 27705
Parcel
Buildings
Misc Improvements
Land
Deeds
Notes
Sales
Photos
Map
Building Location Address
4424 SUNNY CT
Building Description
RESMS-RES-MS-OR-EQ
Card   of  1
Bldg Type RESIDENTIAL
Units 1
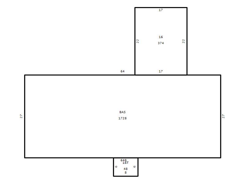
Living Area (SQFT) 1728
Number of Stories 1.00
Style RAN-RANCH
Foundation 04-P-FOOTING/CRWL-SP
Exterior 02-BRICK
Const Type
Heating 05-PACKAGE-HEAT/COOL
Air Cond
Plumbing Baths (Full):   2
Baths (Half):   0
Extra Fixtures:   0
Total Plumbing Fixtures:   6 
Bedrooms 4
Main Body (SQFT) 1728
Year Built 1972
Additions 2
Effective Year 1972
Remodeled 0
Interior Adj.
Other Features
Building Total & Improvement Details

Grade C+10 110%
Percentage Complete 100
Total Adjusted Replacement Cost New $338,009
Physical Depreciation (% Bad) 0%
Depreciated Value $212,946
Economic Depreciation (% Bad) 0%
Functional Depreciation (% Bad) 0%
Total Depreciated Value $212,946
Market Area Factor 1.00
Building Value $212,946
Misc Improvements Value $6,057
Total Improvement Value $219,003

Assessed Land Value $177,750
   
Assessed Total Value $396,753



Addition Summary 
StoryTypeCodeArea
1.00 Frame Deck 16 374
1.00 Terrace/Raised Patio 16T 48
 
Other Improvements 
UnitsDescriptionItemCodeYear% BadValue
324 SIZE Carport w/Floor 1995 50 5319
6x6 DIMENSIONS Storage Building 1973 75 176
10x12 DIMENSIONS Storage Building 1973 75 562
 


Building Sketch
Photograph
Building Sketch Building Photo
(Click sketch for bigger image)




Copyright © 2022 Durham County, North Carolina.