Building Summary

Data last updated on: 3/13/2026     Ownership current as of: 3/9/2026     Tax Year: 2026
REID 176146

PIN # 0803-84-9836

Location Address Property Description
908 CLARION DR ARCHER WOODS/SEC:01/BLK:A /LT#02 PL:000060-000065
   
Property Owner Owner's Mailing Address
GUENTHER, BRITTANY
908 CLARION DR
DURHAM NC 27705
Parcel
Buildings
Misc Improvements
Land
Deeds
Notes
Sales
Photos
Map
Building Location Address
908 CLARION DR
Building Description
RESMS-RES-MS-OR-EQ
Card   of  1
Bldg Type RESIDENTIAL
Units 1
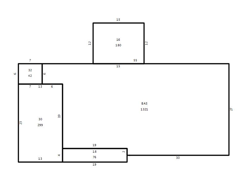
Living Area (SQFT) 1321
Number of Stories 1.00
Style RAN-RANCH
Foundation 04-P-FOOTING/CRWL-SP
Exterior 02-BRICK
Const Type
Heating 05-PACKAGE-HEAT/COOL
Air Cond
Plumbing Baths (Full):   2
Baths (Half):   0
Extra Fixtures:   0
Total Plumbing Fixtures:   6 
Bedrooms 3
Main Body (SQFT) 1321
Year Built 1970
Additions 4
Effective Year 1970
Remodeled 0
Interior Adj.
Other Features
Building Total & Improvement Details

Grade C+10 110%
Percentage Complete 100
Total Adjusted Replacement Cost New $293,704
Physical Depreciation (% Bad) 0%
Depreciated Value $240,837
Economic Depreciation (% Bad) 0%
Functional Depreciation (% Bad) 0%
Total Depreciated Value $240,837
Market Area Factor 1.00
Building Value $240,837
Misc Improvements Value $4,725
Total Improvement Value $245,562

Assessed Land Value $166,500
   
Assessed Total Value $412,062



Addition Summary 
StoryTypeCodeArea
1.00 Frame Deck 16 180
1.00 Covered Porch 18 76
1.00 Carport 30 299
1.00 Storage Utility 32 42
 
Other Improvements 
UnitsDescriptionItemCodeYear% BadValue
20x20 DIMENSIONS Shop 1970 75 4725
 


Building Sketch
Photograph
Building Sketch Building Photo
(Click sketch for bigger image)




Copyright © 2022 Durham County, North Carolina.