Building Summary

Data last updated on: 3/13/2026     Ownership current as of: 3/9/2026     Tax Year: 2026
REID 176207

PIN # 0803-74-8712

Location Address Property Description
621 CHALICE ST ARCHER WOODS/SEC:07/BLK:D /LT#03 PL:000079-000011
   
Property Owner Owner's Mailing Address
WATKINS, MICHAEL TYLER;WATKINS, NICHELLE
621 CHALICE ST
DURHAM NC 27705
Parcel
Buildings
Misc Improvements
Land
Deeds
Notes
Sales
Photos
Map
Building Location Address
621 CHALICE ST
Building Description
RESMF-RES-MAS/FRAME
Card   of  1
Bldg Type RESIDENTIAL
Units 1
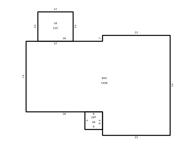
Living Area (SQFT) 2096
Number of Stories 1.00
Style BTS-BI/TRI/SPLT-LEVL
Foundation 04-P-FOOTING/CRWL-SP
Exterior 02-BRICK
Const Type
Heating 05-PACKAGE-HEAT/COOL
Air Cond
Plumbing Baths (Full):   3
Baths (Half):   0
Extra Fixtures:   0
Total Plumbing Fixtures:   9 
Bedrooms 4
Main Body (SQFT) 1406
Year Built 1974
Additions 3
Effective Year 1974
Remodeled 0
Interior Adj.
Other Features
Building Total & Improvement Details

Grade C+5 105%
Percentage Complete 100
Total Adjusted Replacement Cost New $360,372
Physical Depreciation (% Bad) 0%
Depreciated Value $230,638
Economic Depreciation (% Bad) 0%
Functional Depreciation (% Bad) 0%
Total Depreciated Value $230,638
Market Area Factor 1.00
Building Value $230,638
Misc Improvements Value
Total Improvement Value $230,638

Assessed Land Value $171,000
   
Assessed Total Value $401,638



Addition Summary 
StoryTypeCodeArea
1.00 Frame Deck 16 120
1.00 Terrace/Raised Patio 16T 36
1.00 Lower Living Area LL 690
 
Other Improvements 
 


Building Sketch
Photograph
Building Sketch Building Photo
(Click sketch for bigger image)




Copyright © 2022 Durham County, North Carolina.