Building Summary

Data last updated on: 3/13/2026     Ownership current as of: 3/9/2026     Tax Year: 2026
REID 177460

PIN # 0824-03-0197

Location Address Property Description
4021 CHAUCER DR TANGLEWOOD/BLK:A/LT#11 PL:000049-000053
   
Property Owner Owner's Mailing Address
CRUZ, LIDIA MARTINEZ
4021 CHAUCER DR
DURHAM NC 27705
Parcel
Buildings
Misc Improvements
Land
Deeds
Notes
Sales
Photos
Map
Building Location Address
4021 CHAUCER DR
Building Description
RESMS-RES-MS-OR-EQ
Card   of  1
Bldg Type RESIDENTIAL
Units 1
Living Area (SQFT) 1218
Number of Stories 1.00
Style RAN-RANCH
Foundation 04-P-FOOTING/CRWL-SP
Exterior 02-BRICK
Const Type
Heating 05-PACKAGE-HEAT/COOL
Air Cond
Plumbing Baths (Full):   1
Baths (Half):   1
Extra Fixtures:   0
Total Plumbing Fixtures:   5 
Bedrooms 3
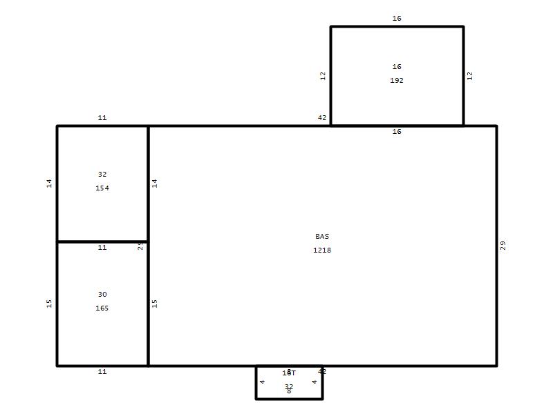
Main Body (SQFT) 1218
Year Built 1968
Additions 4
Effective Year 1968
Remodeled 0
Interior Adj.
Other Features
Building Total & Improvement Details

Grade C+10 110%
Percentage Complete 100
Total Adjusted Replacement Cost New $277,225
Physical Depreciation (% Bad) 0%
Depreciated Value $169,107
Economic Depreciation (% Bad) 0%
Functional Depreciation (% Bad) 0%
Total Depreciated Value $169,107
Market Area Factor 1.00
Building Value $169,107
Misc Improvements Value $23,107
Total Improvement Value $192,214

Assessed Land Value $138,600
   
Assessed Total Value $330,814



Addition Summary 
StoryTypeCodeArea
1.00 Frame Deck 16 192
1.00 Terrace/Raised Patio 16T 32
1.00 Carport 30 165
1.00 Storage Utility 32 154
 
Other Improvements 
UnitsDescriptionItemCodeYear% BadValue
20 x 24 DIMENSIONS Garage Frame 2024 5 23107
 


Building Sketch
Photograph
Building Sketch Building Photo
(Click sketch for bigger image)




Copyright © 2022 Durham County, North Carolina.