Building Summary

Data last updated on: 3/13/2026     Ownership current as of: 3/9/2026     Tax Year: 2026
REID 177462

PIN # 0824-03-2011

Location Address Property Description
4013 CHAUCER DR TANGLEWOOD/BLK:A/LT#09 PL:000049-000053
   
Property Owner Owner's Mailing Address
BIONDI, SARA M;SMITH, TIMOTHY J
4013 CHAUCER DR
DURHAM NC 27705
Parcel
Buildings
Misc Improvements
Land
Deeds
Notes
Sales
Photos
Map
Building Location Address
4013 CHAUCER DR
Building Description
RESMF-RES-MAS/FRAME
Card   of  1
Bldg Type RESIDENTIAL
Units 1
Living Area (SQFT) 1728
Number of Stories 1.00
Style BTS-BI/TRI/SPLT-LEVL
Foundation 04-P-FOOTING/CRWL-SP
Exterior 02-BRICK
Const Type
Heating 05-PACKAGE-HEAT/COOL
Air Cond
Plumbing Baths (Full):   2
Baths (Half):   0
Extra Fixtures:   0
Total Plumbing Fixtures:   6 
Bedrooms 3
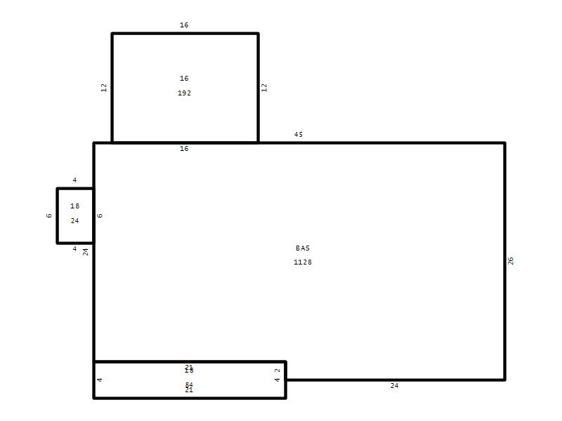
Main Body (SQFT) 1128
Year Built 1967
Additions 4
Effective Year 1967
Remodeled 0
Interior Adj.
Other Features
Building Total & Improvement Details

Grade C+10 110%
Percentage Complete 100
Total Adjusted Replacement Cost New $324,899
Physical Depreciation (% Bad) 0%
Depreciated Value $230,678
Economic Depreciation (% Bad) 0%
Functional Depreciation (% Bad) 0%
Total Depreciated Value $230,678
Market Area Factor 1.00
Building Value $230,678
Misc Improvements Value $2,316
Total Improvement Value $232,994

Assessed Land Value $131,400
   
Assessed Total Value $364,394



Addition Summary 
StoryTypeCodeArea
1.00 Frame Deck 16 192
1.00 Covered Porch 18 84
1.00 Covered Porch 18 24
1.00 Lower Living Area LL 600
 
Other Improvements 
UnitsDescriptionItemCodeYear% BadValue
12x14 DIMENSIONS Shed (Open Pole) 1967 75 373
12x20 DIMENSIONS Deck 1967 75 1716
10x10 DIMENSIONS Shed (Open Pole) 1967 75 227
 


Building Sketch
Photograph
Building Sketch Building Photo
(Click sketch for bigger image)




Copyright © 2022 Durham County, North Carolina.