Building Summary

Data last updated on: 3/13/2026     Ownership current as of: 3/9/2026     Tax Year: 2026
REID 177538

PIN # 0824-13-6559

Location Address Property Description
2424 LANDIS DR TANGLEWOOD/BLK:E/LT#02 PL:000049-000053
   
Property Owner Owner's Mailing Address
RAMOS, ETHAN;RAMOS, CATHERINE
2428 LANDIS DR
DURHAM NC 27705
Parcel
Buildings
Misc Improvements
Land
Deeds
Notes
Sales
Photos
Map
Building Location Address
2424 LANDIS DR
Building Description
RESFR-RES-FRM-OR-EQ
Card   of  1
Bldg Type RESIDENTIAL
Units 1
Living Area (SQFT) 1518
Number of Stories 1.00
Style BTS-BI/TRI/SPLT-LEVL
Foundation 04-P-FOOTING/CRWL-SP
Exterior 08-VINYL/ALUMINUM
Const Type
Heating 05-PACKAGE-HEAT/COOL
Air Cond
Plumbing Baths (Full):   2
Baths (Half):   0
Extra Fixtures:   0
Total Plumbing Fixtures:   6 
Bedrooms 3
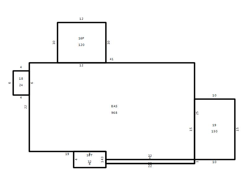
Main Body (SQFT) 968
Year Built 1965
Additions 6
Effective Year 1965
Remodeled 0
Interior Adj.
Other Features
Building Total & Improvement Details

Grade C+10 110%
Percentage Complete 100
Total Adjusted Replacement Cost New $299,392
Physical Depreciation (% Bad) 0%
Depreciated Value $131,732
Economic Depreciation (% Bad) 0%
Functional Depreciation (% Bad) 0%
Total Depreciated Value $131,732
Market Area Factor 1.00
Building Value $131,732
Misc Improvements Value $340
Total Improvement Value $132,072

Assessed Land Value $131,400
   
Assessed Total Value $263,472



Addition Summary 
StoryTypeCodeArea
1.00 Overhang 01 22
1.00 Patio 16P 120
1.00 Terrace/Raised Patio 16T 32
1.00 Covered Porch 18 24
1.00 Screen Porch 19 150
1.00 Lower Living Area LL 528
 
Other Improvements 
UnitsDescriptionItemCodeYear% BadValue
10x10 DIMENSIONS Shed (Open Pole) 1965 75 170
10x10 DIMENSIONS Shed (Open Pole) 1965 75 170
 


Building Sketch
Photograph
Building Sketch Building Photo
(Click sketch for bigger image)




Copyright © 2022 Durham County, North Carolina.