Building Summary

Data last updated on: 3/13/2026     Ownership current as of: 3/9/2026     Tax Year: 2026
REID 177543

PIN # 0824-23-0885

Location Address Property Description
2404 LANDIS DR TANGLEWOOD/BLK:E/LT#07 PL:000049-000053
   
Property Owner Owner's Mailing Address
BENNETT, JODY LEAANN
2404 LANDIS DR
DURHAM NC 27705
Parcel
Buildings
Misc Improvements
Land
Deeds
Notes
Sales
Photos
Map
Building Location Address
2404 LANDIS DR
Building Description
RESMS-RES-MS-OR-EQ
Card   of  1
Bldg Type RESIDENTIAL
Units 1
Living Area (SQFT) 1375
Number of Stories 1.00
Style RAN-RANCH
Foundation 04-P-FOOTING/CRWL-SP
Exterior 02-BRICK
Const Type
Heating 05-PACKAGE-HEAT/COOL
Air Cond
Plumbing Baths (Full):   2
Baths (Half):   0
Extra Fixtures:   0
Total Plumbing Fixtures:   6 
Bedrooms 3
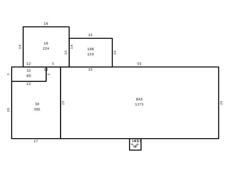
Main Body (SQFT) 1375
Year Built 1969
Additions 5
Effective Year 1969
Remodeled 0
Interior Adj.
Other Features
Building Total & Improvement Details

Grade C+10 110%
Percentage Complete 100
Total Adjusted Replacement Cost New $302,677
Physical Depreciation (% Bad) 0%
Depreciated Value $187,660
Economic Depreciation (% Bad) 0%
Functional Depreciation (% Bad) 0%
Total Depreciated Value $187,660
Market Area Factor 1.00
Building Value $187,660
Misc Improvements Value $245
Total Improvement Value $187,905

Assessed Land Value $131,400
   
Assessed Total Value $319,305



Addition Summary 
StoryTypeCodeArea
1.00 Frame Deck 16 224
1.00 Concrete Slab 16B 150
1.00 Stoop 16S 16
1.00 Carport 30 365
1.00 Storage Utility 32 60
 
Other Improvements 
UnitsDescriptionItemCodeYear% BadValue
12x12 DIMENSIONS Shed (Open Pole) 1969 75 245
 


Building Sketch
Photograph
Building Sketch Building Photo
(Click sketch for bigger image)




Copyright © 2022 Durham County, North Carolina.