Building Summary

Data last updated on: 3/13/2026     Ownership current as of: 3/9/2026     Tax Year: 2026
REID 177556

PIN # 0824-02-7786

Location Address Property Description
2611 LANDIS DR TANGLEWOOD/BLK:F/LT#07 PL:000049-000053
   
Property Owner Owner's Mailing Address
CAMPBELL, HANNAH MOORE;CAMPBELL, JACOB JAMES
2611 LANDIS DR
DURHAM NC 27705
Parcel
Buildings
Misc Improvements
Land
Deeds
Notes
Sales
Photos
Map
Building Location Address
2611 LANDIS DR
Building Description
RESFR-RES-FRM-OR-EQ
Card   of  1
Bldg Type RESIDENTIAL
Units 1
Living Area (SQFT) 2304
Number of Stories 1.00
Style RAN-RANCH
Foundation 06-BASEMENT
Exterior 09-HARD-B/CEMENTBRD
Const Type
Heating 05-PACKAGE-HEAT/COOL
Air Cond
Plumbing Baths (Full):   3
Baths (Half):   0
Extra Fixtures:   0
Total Plumbing Fixtures:   9 
Bedrooms 4
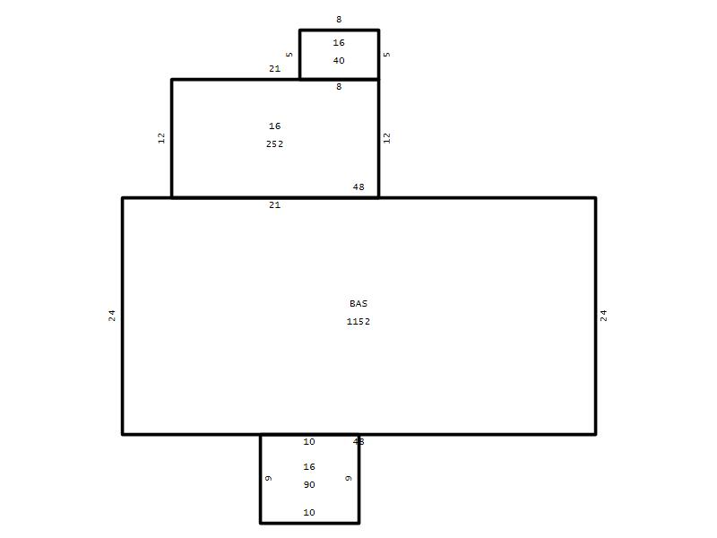
Main Body (SQFT) 1152
Year Built 1976
Additions 4
Effective Year 1976
Remodeled 0
Interior Adj.
Other Features
Building Total & Improvement Details

Grade C+10 110%
Percentage Complete 100
Total Adjusted Replacement Cost New $348,415
Physical Depreciation (% Bad) 0%
Depreciated Value $261,311
Economic Depreciation (% Bad) 0%
Functional Depreciation (% Bad) 0%
Total Depreciated Value $261,311
Market Area Factor 1.00
Building Value $261,311
Misc Improvements Value $426
Total Improvement Value $261,737

Assessed Land Value $131,400
   
Assessed Total Value $393,137



Addition Summary 
StoryTypeCodeArea
1.00 Frame Deck 16 252
1.00 Frame Deck 16 90
1.00 Frame Deck 16 40
1.00 Finished Basement 14 1152
 
Other Improvements 
UnitsDescriptionItemCodeYear% BadValue
12x16 DIMENSIONS Shed (Open Pole) 1976 75 426
 


Building Sketch
Photograph
Building Sketch Building Photo
(Click sketch for bigger image)




Copyright © 2022 Durham County, North Carolina.