Building Summary

Data last updated on: 3/13/2026     Ownership current as of: 3/9/2026     Tax Year: 2026
REID 177565

PIN # 0824-13-5252

Location Address Property Description
2501 LANDIS DR TANGLEWOOD/BLK:F/LT#16 PL:000049-000053
   
Property Owner Owner's Mailing Address
MONK, KELSEY VIRGINIA
2501 LANDIS DR
DURHAM NC 27705
Parcel
Buildings
Misc Improvements
Land
Deeds
Notes
Sales
Photos
Map
Building Location Address
2501 LANDIS DR
Building Description
RESMS-RES-MS-OR-EQ
Card   of  1
Bldg Type RESIDENTIAL
Units 1
Living Area (SQFT) 1250
Number of Stories 1.00
Style RAN-RANCH
Foundation 04-P-FOOTING/CRWL-SP
Exterior 02-BRICK
Const Type
Heating 02-RAD/ELEC/BB/WATR
Air Cond
Plumbing Baths (Full):   2
Baths (Half):   0
Extra Fixtures:   0
Total Plumbing Fixtures:   6 
Bedrooms 3
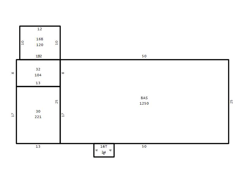
Main Body (SQFT) 1250
Year Built 1969
Additions 4
Effective Year 1969
Remodeled 0
Interior Adj.
Other Features
Building Total & Improvement Details

Grade C+10 110%
Percentage Complete 100
Total Adjusted Replacement Cost New $268,160
Physical Depreciation (% Bad) 0%
Depreciated Value $166,259
Economic Depreciation (% Bad) 0%
Functional Depreciation (% Bad) 0%
Total Depreciated Value $166,259
Market Area Factor 1.00
Building Value $166,259
Misc Improvements Value
Total Improvement Value $166,259

Assessed Land Value $131,400
   
Assessed Total Value $297,659



Addition Summary 
StoryTypeCodeArea
1.00 Concrete Slab 16B 120
1.00 Terrace/Raised Patio 16T 24
1.00 Carport 30 221
1.00 Storage Utility 32 104
 
Other Improvements 
 


Building Sketch
Photograph
Building Sketch Building Photo
(Click sketch for bigger image)




Copyright © 2022 Durham County, North Carolina.