Building Summary

Data last updated on: 3/13/2026     Ownership current as of: 3/9/2026     Tax Year: 2026
REID 177567

PIN # 0824-13-7333

Location Address Property Description
2429 LANDIS DR TANGLEWOOD/BLK:F/LT#18 PL:000049-000053
   
Property Owner Owner's Mailing Address
MOHENO, IRVIN GERADO GONZALEZ;MALDONADO, CINTHIA KRISTEL ORELLANA
2429 LANDIS DR
DURHAM NC 27705
Parcel
Buildings
Misc Improvements
Land
Deeds
Notes
Sales
Photos
Map
Building Location Address
2429 LANDIS DR
Building Description
RESMF-RES-MAS/FRAME
Card   of  1
Bldg Type RESIDENTIAL
Units 1
Living Area (SQFT) 1227
Number of Stories 1.00
Style RAN-RANCH
Foundation 04-P-FOOTING/CRWL-SP
Exterior 02-BRICK
Const Type
Heating 05-PACKAGE-HEAT/COOL
Air Cond
Plumbing Baths (Full):   2
Baths (Half):   0
Extra Fixtures:   0
Total Plumbing Fixtures:   6 
Bedrooms 3
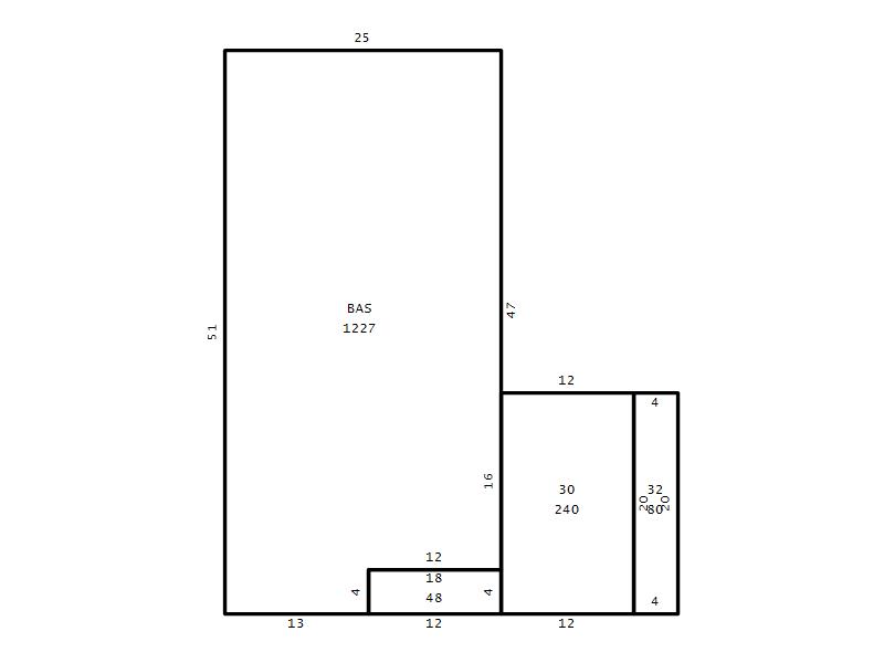
Main Body (SQFT) 1227
Year Built 1965
Additions 3
Effective Year 1965
Remodeled 0
Interior Adj.
Other Features
Building Total & Improvement Details

Grade C+10 110%
Percentage Complete 100
Total Adjusted Replacement Cost New $268,207
Physical Depreciation (% Bad) 0%
Depreciated Value $158,242
Economic Depreciation (% Bad) 0%
Functional Depreciation (% Bad) 0%
Total Depreciated Value $158,242
Market Area Factor 1.00
Building Value $158,242
Misc Improvements Value $374
Total Improvement Value $158,616

Assessed Land Value $131,400
   
Assessed Total Value $290,016



Addition Summary 
StoryTypeCodeArea
1.00 Covered Porch 18 48
1.00 Carport 30 240
1.00 Storage Utility 32 80
 
Other Improvements 
UnitsDescriptionItemCodeYear% BadValue
10x10 DIMENSIONS Shed (Open Pole) 1965 75 170
12x10 DIMENSIONS Shed (Open Pole) 1965 75 204
 


Building Sketch
Photograph
Building Sketch Building Photo
(Click sketch for bigger image)




Copyright © 2022 Durham County, North Carolina.