Building Summary

Data last updated on: 4/2/2026     Ownership current as of: 3/30/2026     Tax Year: 2026
REID 177645

PIN # 0834-20-2838

Location Address Property Description
314 SUMMER BREEZE DR SUMMER MDW SGL FMLY/PH:01 /LT#112 PL:000157-000139
   
Property Owner Owner's Mailing Address
CAMPBELL, JENNIFER R
314 SUMMER BREEZE DR
DURHAM NC 27704
Parcel
Buildings
Misc Improvements
Land
Deeds
Notes
Sales
Photos
Map
Building Location Address
314 SUMMER BREEZE DR
Building Description
RESFR-RES-FRM-OR-EQ
Card   of  1
Bldg Type RESIDENTIAL
Units 1
Living Area (SQFT) 1894
Number of Stories 2.00
Style CON-CONVENTIONAL
Foundation 03-CONTINOUS-SLAB
Exterior 08-VINYL/ALUMINUM
Const Type
Heating 06-HEAT-PUMP
Air Cond
Plumbing Baths (Full):   2
Baths (Half):   1
Extra Fixtures:   0
Total Plumbing Fixtures:   8 
Bedrooms 3
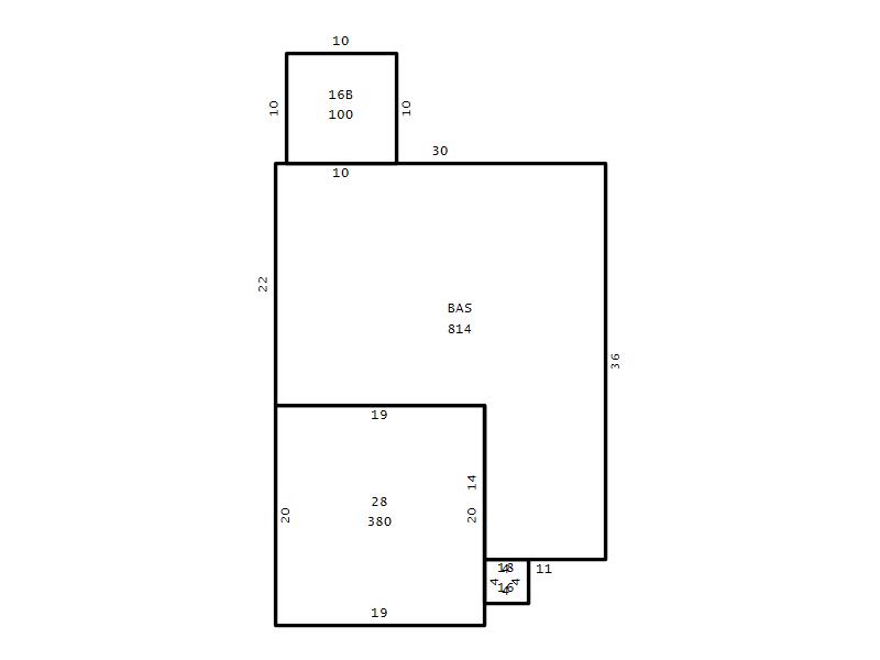
Main Body (SQFT) 814
Year Built 2003
Additions 5
Effective Year 2003
Remodeled 0
Interior Adj.
Other Features
Building Total & Improvement Details

Grade C 100%
Percentage Complete 100
Total Adjusted Replacement Cost New $319,656
Physical Depreciation (% Bad) 0%
Depreciated Value $255,725
Economic Depreciation (% Bad) 0%
Functional Depreciation (% Bad) 0%
Total Depreciated Value $255,725
Market Area Factor 1.00
Building Value $255,725
Misc Improvements Value
Total Improvement Value $255,725

Assessed Land Value $70,000
   
Assessed Total Value $325,725



Addition Summary 
StoryTypeCodeArea
1.00 Concrete Slab 16B 100
1.00 Covered Porch 18 16
1.00 Garage 28 380
1.00 Res Frame 2Nd Flr FR02 814
1.00 Res Frm 2Nd Flr Over Garg FR02 266
 
Other Improvements 
 


Building Sketch
Photograph
Building Sketch Building Photo
(Click sketch for bigger image)




Copyright © 2022 Durham County, North Carolina.