Building Summary

Data last updated on: 4/2/2026     Ownership current as of: 3/30/2026     Tax Year: 2026
REID 177649

PIN # 0834-21-2104

Location Address Property Description
5 OCEAN CT SUMMER MDW SGL FMLY/PH:01 /LT#116 PL:000157-000139
   
Property Owner Owner's Mailing Address
HARMATZ, ISCA;HARMATZ, MARYANA
203 LITTLEFORD LN
CARY NC 27519
Parcel
Buildings
Misc Improvements
Land
Deeds
Notes
Sales
Photos
Map
Building Location Address
5 OCEAN CT
Building Description
RESFR-RES-FRM-OR-EQ
Card   of  1
Bldg Type RESIDENTIAL
Units 1
Living Area (SQFT) 1344
Number of Stories 2.00
Style CON-CONVENTIONAL
Foundation 03-CONTINOUS-SLAB
Exterior 08-VINYL/ALUMINUM
Const Type
Heating 06-HEAT-PUMP
Air Cond
Plumbing Baths (Full):   2
Baths (Half):   0
Extra Fixtures:   0
Total Plumbing Fixtures:   6 
Bedrooms 4
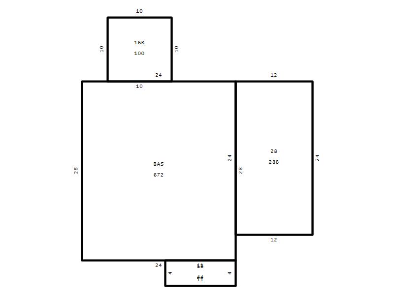
Main Body (SQFT) 672
Year Built 2003
Additions 4
Effective Year 2003
Remodeled 0
Interior Adj.
Other Features
Building Total & Improvement Details

Grade C 100%
Percentage Complete 100
Total Adjusted Replacement Cost New $251,781
Physical Depreciation (% Bad) 0%
Depreciated Value $201,425
Economic Depreciation (% Bad) 0%
Functional Depreciation (% Bad) 0%
Total Depreciated Value $201,425
Market Area Factor 1.00
Building Value $201,425
Misc Improvements Value
Total Improvement Value $201,425

Assessed Land Value $75,625
   
Assessed Total Value $277,050



Addition Summary 
StoryTypeCodeArea
1.00 Concrete Slab 16B 100
1.00 Covered Porch 18 44
1.00 Garage 28 288
1.00 Res Frame 2Nd Flr FR02 672
 
Other Improvements 
 


Building Sketch
Photograph
Building Sketch Building Photo
(Click sketch for bigger image)




Copyright © 2022 Durham County, North Carolina.