Building Summary

Data last updated on: 4/2/2026     Ownership current as of: 3/30/2026     Tax Year: 2026
REID 177858

PIN # 0834-40-4553

Location Address Property Description
711 HEBRON RD HILLVIEW TERRACE/BLK:A/LT #03 PL:000035-000061
   
Property Owner Owner's Mailing Address
CARRINGTON, STACEY
720 MARDONIE REACH LN
CARY NC 27519
Parcel
Buildings
Misc Improvements
Land
Deeds
Notes
Sales
Photos
Map
Building Location Address
711 HEBRON RD
Building Description
RESMS-RES-MS-OR-EQ
Card   of  1
Bldg Type RESIDENTIAL
Units 1
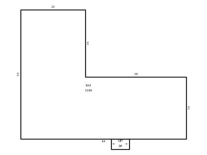
Living Area (SQFT) 2186
Number of Stories 1.00
Style RAN-RANCH
Foundation 04-P-FOOTING/CRWL-SP
Exterior 02-BRICK
Const Type
Heating 05-PACKAGE-HEAT/COOL
Air Cond
Plumbing Baths (Full):   2
Baths (Half):   0
Extra Fixtures:   0
Total Plumbing Fixtures:   6 
Bedrooms 5
Main Body (SQFT) 2186
Year Built 1962
Additions 1
Effective Year 1962
Remodeled 0
Interior Adj.
Other Features
Building Total & Improvement Details

Grade C+5 105%
Percentage Complete 100
Total Adjusted Replacement Cost New $375,280
Physical Depreciation (% Bad) 0%
Depreciated Value $247,685
Economic Depreciation (% Bad) 0%
Functional Depreciation (% Bad) 0%
Total Depreciated Value $247,685
Market Area Factor 1.00
Building Value $247,685
Misc Improvements Value
Total Improvement Value $247,685

Assessed Land Value $91,875
   
Assessed Total Value $339,560



Addition Summary 
StoryTypeCodeArea
1.00 Terrace/Raised Patio 16T 28
 
Other Improvements 
 


Building Sketch
Photograph
Building Sketch Building Photo
(Click sketch for bigger image)




Copyright © 2022 Durham County, North Carolina.