Building Summary

Data last updated on: 4/2/2026     Ownership current as of: 3/30/2026     Tax Year: 2026
REID 177892

PIN # 0834-51-1011

Location Address Property Description
807 JUSTICE ST HILLVIEW TERRACE EXT/BLK: D/LT#02 PL:000035-000061
   
Property Owner Owner's Mailing Address
LOPEZ, MISAEL TORRES
807 JUSTICE ST
DURHAM NC 27704
Parcel
Buildings
Misc Improvements
Land
Deeds
Notes
Sales
Photos
Map
Building Location Address
807 JUSTICE ST
Building Description
RESMF-RES-MAS/FRAME
Card   of  1
Bldg Type RESIDENTIAL
Units 1
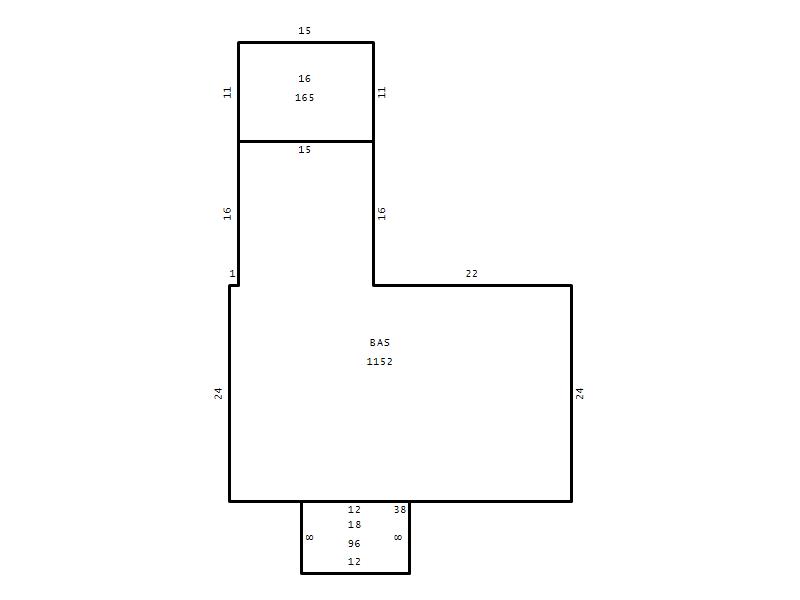
Living Area (SQFT) 1152
Number of Stories 1.00
Style RAN-RANCH
Foundation 04-P-FOOTING/CRWL-SP
Exterior 08-VINYL/ALUMINUM
Const Type
Heating 05-PACKAGE-HEAT/COOL
Air Cond
Plumbing Baths (Full):   1
Baths (Half):   1
Extra Fixtures:   0
Total Plumbing Fixtures:   5 
Bedrooms 3
Main Body (SQFT) 1152
Year Built 1962
Additions 2
Effective Year 1962
Remodeled 0
Interior Adj.
Other Features
Building Total & Improvement Details

Grade C+ 110%
Percentage Complete 100
Total Adjusted Replacement Cost New $250,617
Physical Depreciation (% Bad) 0%
Depreciated Value $215,531
Economic Depreciation (% Bad) 0%
Functional Depreciation (% Bad) 0%
Total Depreciated Value $215,531
Market Area Factor 1.00
Building Value $215,531
Misc Improvements Value
Total Improvement Value $215,531

Assessed Land Value $90,625
   
Assessed Total Value $306,156



Addition Summary 
StoryTypeCodeArea
1.00 Frame Deck 16 165
1.00 Covered Porch 18 96
 
Other Improvements 
 


Building Sketch
Photograph
Building Sketch Building Photo
(Click sketch for bigger image)




Copyright © 2022 Durham County, North Carolina.