Building Summary

Data last updated on: 4/2/2026     Ownership current as of: 3/30/2026     Tax Year: 2026
REID 177995

PIN # 0834-42-4496

Location Address Property Description
711 MELANIE ST HILLVIEW TERRACE EXT/BLK: J/LT#10 PL:000036-000076
   
Property Owner Owner's Mailing Address
RIVERA, JUAN ANGELES
711 MELANIE ST
DURHAM NC 27704
Parcel
Buildings
Misc Improvements
Land
Deeds
Notes
Sales
Photos
Map
Building Location Address
711 MELANIE ST
Building Description
RESMF-RES-MAS/FRAME
Card   of  1
Bldg Type RESIDENTIAL
Units 1
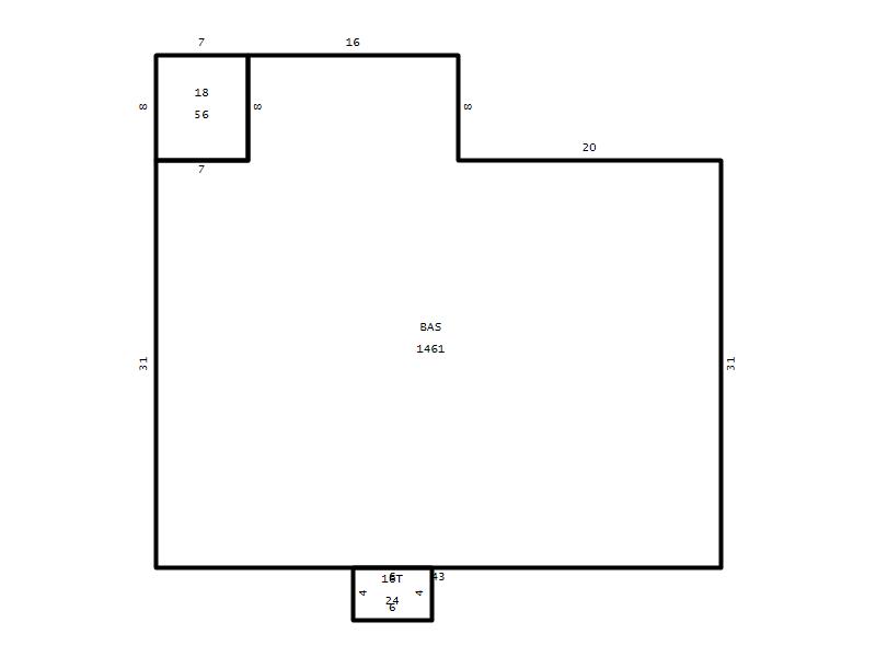
Living Area (SQFT) 1461
Number of Stories 1.00
Style RAN-RANCH
Foundation 03-CONTINOUS-SLAB
Exterior 09-HARD-B/CEMENTBRD
Const Type
Heating 05-PACKAGE-HEAT/COOL
Air Cond
Plumbing Baths (Full):   1
Baths (Half):   0
Extra Fixtures:   0
Total Plumbing Fixtures:   3 
Bedrooms 4
Main Body (SQFT) 1461
Year Built 1975
Additions 2
Effective Year 1975
Remodeled 0
Interior Adj.
Other Features
Building Total & Improvement Details

Grade C+5 105%
Percentage Complete 100
Total Adjusted Replacement Cost New $257,644
Physical Depreciation (% Bad) 0%
Depreciated Value $167,469
Economic Depreciation (% Bad) 0%
Functional Depreciation (% Bad) 0%
Total Depreciated Value $167,469
Market Area Factor 1.00
Building Value $167,469
Misc Improvements Value $1,259
Total Improvement Value $168,728

Assessed Land Value $91,250
   
Assessed Total Value $259,978



Addition Summary 
StoryTypeCodeArea
1.00 Terrace/Raised Patio 16T 24
1.00 Covered Porch 18 56
 
Other Improvements 
UnitsDescriptionItemCodeYear% BadValue
120 SIZE Shed (Open Pole) 1975 75 204
21x20 DIMENSIONS Prefab Metal Car Shed 2000 50 1055
 


Building Sketch
Photograph
Building Sketch Building Photo
(Click sketch for bigger image)




Copyright © 2022 Durham County, North Carolina.