Building Summary

Data last updated on: 4/2/2026     Ownership current as of: 3/30/2026     Tax Year: 2026
REID 178000

PIN # 0834-52-2658

Location Address Property Description
810 FELICIA ST HILLVIEW TERRACE EXT/BLK: K/LT#03 PL:000036-000076
   
Property Owner Owner's Mailing Address
CPI/AMHERST SFR PROGRAM II OWNER LLC
3903 S CONGRESS AVE STE 40298
AUSTIN TX 78704
Parcel
Buildings
Misc Improvements
Land
Deeds
Notes
Sales
Photos
Map
Building Location Address
810 FELICIA ST
Building Description
RESFR-RES-FRM-OR-EQ
Card   of  1
Bldg Type RESIDENTIAL
Units 1
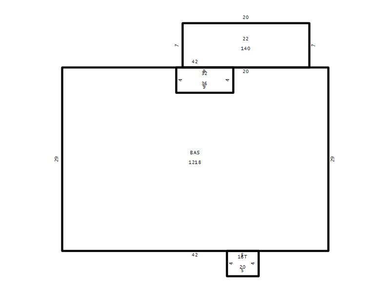
Living Area (SQFT) 1218
Number of Stories 1.00
Style RAN-RANCH
Foundation 03-CONTINOUS-SLAB
Exterior 09-HARD-B/CEMENTBRD
Const Type
Heating 06-HEAT-PUMP
Air Cond
Plumbing Baths (Full):   2
Baths (Half):   0
Extra Fixtures:   0
Total Plumbing Fixtures:   6 
Bedrooms 3
Main Body (SQFT) 1218
Year Built 1988
Additions 3
Effective Year 1988
Remodeled 0
Interior Adj.
Other Features
Building Total & Improvement Details

Grade C+5 105%
Percentage Complete 100
Total Adjusted Replacement Cost New $238,374
Physical Depreciation (% Bad) 0%
Depreciated Value $169,246
Economic Depreciation (% Bad) 0%
Functional Depreciation (% Bad) 0%
Total Depreciated Value $169,246
Market Area Factor 1.00
Building Value $169,246
Misc Improvements Value
Total Improvement Value $169,246

Assessed Land Value $91,250
   
Assessed Total Value $260,496



Addition Summary 
StoryTypeCodeArea
1.00 Terrace/Raised Patio 16T 20
1.00 Enclosed Porch 22 140
1.00 Storage Utility 32 36
 
Other Improvements 
 


Building Sketch
Photograph
Building Sketch Building Photo
(Click sketch for bigger image)




Copyright © 2022 Durham County, North Carolina.