Building Summary

Data last updated on: 4/2/2026     Ownership current as of: 3/30/2026     Tax Year: 2026
REID 178011

PIN # 0834-42-7998

Location Address Property Description
723 FELICIA ST HILLVIEW TERRACE EXT/BLK: L/LT#11 PL:000036-000076
   
Property Owner Owner's Mailing Address
GARCIA, JOSE EDGARDO;TORRES-NUNEZ, ANITA
723 FELICIA ST
DURHAM NC 27704
Parcel
Buildings
Misc Improvements
Land
Deeds
Notes
Sales
Photos
Map
Building Location Address
723 FELICIA ST
Building Description
RESFR-RES-FRM-OR-EQ
Card   of  1
Bldg Type RESIDENTIAL
Units 1
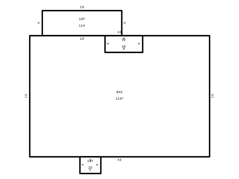
Living Area (SQFT) 1247
Number of Stories 1.00
Style RAN-RANCH
Foundation 03-CONTINOUS-SLAB
Exterior 09-HARD-B/CEMENTBRD
Const Type
Heating 06-HEAT-PUMP
Air Cond
Plumbing Baths (Full):   2
Baths (Half):   0
Extra Fixtures:   0
Total Plumbing Fixtures:   6 
Bedrooms 3
Main Body (SQFT) 1247
Year Built 1988
Additions 3
Effective Year 1988
Remodeled 0
Interior Adj.
Other Features
Building Total & Improvement Details

Grade C+5 105%
Percentage Complete 100
Total Adjusted Replacement Cost New $232,894
Physical Depreciation (% Bad) 0%
Depreciated Value $165,355
Economic Depreciation (% Bad) 0%
Functional Depreciation (% Bad) 0%
Total Depreciated Value $165,355
Market Area Factor 1.00
Building Value $165,355
Misc Improvements Value
Total Improvement Value $165,355

Assessed Land Value $108,750
   
Assessed Total Value $274,105



Addition Summary 
StoryTypeCodeArea
1.00 Terrace/Raised Patio 16T 114
1.00 Storage Utility 32 36
1.00 Terrace/Raised Patio 16T 20
 
Other Improvements 
 


Building Sketch
Photograph
Building Sketch Building Photo
(Click sketch for bigger image)




Copyright © 2022 Durham County, North Carolina.