Building Summary

Data last updated on: 4/2/2026     Ownership current as of: 3/30/2026     Tax Year: 2026
REID 180053

PIN # 0834-27-4783

Location Address Property Description
4803 LAZYRIVER DR ENO TRACE/PH:02/LT#177 PL:000116-000165
   
Property Owner Owner's Mailing Address
ROJAS, ASAF HERNANDEZ;PEREZ, ROSALIA BARUCH
4803 LAZYRIVER DR
DURHAM NC 27712
Parcel
Buildings
Misc Improvements
Land
Deeds
Notes
Sales
Photos
Map
Building Location Address
4803 LAZYRIVER DR
Building Description
RESFR-RES-FRM-OR-EQ
Card   of  1
Bldg Type RESIDENTIAL
Units 1
Living Area (SQFT) 1600
Number of Stories 2.00
Style CON-CONVENTIONAL
Foundation 04-P-FOOTING/CRWL-SP
Exterior 09-HARD-B/CEMENTBRD
Const Type
Heating 05-PACKAGE-HEAT/COOL
Air Cond
Plumbing Baths (Full):   2
Baths (Half):   1
Extra Fixtures:   0
Total Plumbing Fixtures:   8 
Bedrooms 3
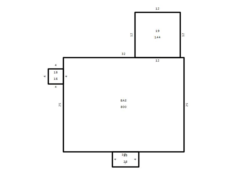
Main Body (SQFT) 800
Year Built 1992
Additions 4
Effective Year 1992
Remodeled 0
Interior Adj.
Other Features
Building Total & Improvement Details

Grade B+ 135%
Percentage Complete 100
Total Adjusted Replacement Cost New $384,422
Physical Depreciation (% Bad) 0%
Depreciated Value $280,628
Economic Depreciation (% Bad) 0%
Functional Depreciation (% Bad) 0%
Total Depreciated Value $280,628
Market Area Factor 1.00
Building Value $280,628
Misc Improvements Value
Total Improvement Value $280,628

Assessed Land Value $70,150
   
Assessed Total Value $350,778



Addition Summary 
StoryTypeCodeArea
1.00 Covered Porch 18 28
1.00 Screen Porch 19 144
1.00 Covered Porch 18 16
1.00 Res Frame 2Nd Flr FR02 800
 
Other Improvements 
 


Building Sketch
Photograph
Building Sketch Building Photo
(Click sketch for bigger image)




Copyright © 2022 Durham County, North Carolina.