Building Summary

Data last updated on: 4/2/2026     Ownership current as of: 3/30/2026     Tax Year: 2026
REID 180058

PIN # 0834-28-3074

Location Address Property Description
4815 LAZYRIVER DR ENO TRACE/PH:02/LT#182 PL:000116-000165
   
Property Owner Owner's Mailing Address
HENDRICKS, JESSICA
4815 LAZYRIVER DR
DURHAM NC 27712
Parcel
Buildings
Misc Improvements
Land
Deeds
Notes
Sales
Photos
Map
Building Location Address
4815 LAZYRIVER DR
Building Description
RESFR-RES-FRM-OR-EQ
Card   of  1
Bldg Type RESIDENTIAL
Units 1
Living Area (SQFT) 1656
Number of Stories 2.00
Style CON-CONVENTIONAL
Foundation 04-P-FOOTING/CRWL-SP
Exterior 09-HARD-B/CEMENTBRD
Const Type
Heating 05-PACKAGE-HEAT/COOL
Air Cond
Plumbing Baths (Full):   2
Baths (Half):   1
Extra Fixtures:   0
Total Plumbing Fixtures:   8 
Bedrooms 3
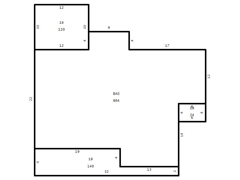
Main Body (SQFT) 864
Year Built 1993
Additions 4
Effective Year 1993
Remodeled 0
Interior Adj.
Other Features
Building Total & Improvement Details

Grade B+ 135%
Percentage Complete 100
Total Adjusted Replacement Cost New $396,139
Physical Depreciation (% Bad) 0%
Depreciated Value $293,143
Economic Depreciation (% Bad) 0%
Functional Depreciation (% Bad) 0%
Total Depreciated Value $293,143
Market Area Factor 1.00
Building Value $293,143
Misc Improvements Value $204
Total Improvement Value $293,347

Assessed Land Value $70,150
   
Assessed Total Value $363,497



Addition Summary 
StoryTypeCodeArea
1.00 Frame Deck 16 120
1.00 Covered Porch 18 24
1.00 Covered Porch 18 140
1.00 Res Frame 2Nd Flr FR02 792
 
Other Improvements 
UnitsDescriptionItemCodeYear% BadValue
10x12 DIMENSIONS Shed (Open Pole) 1993 75 204
 


Building Sketch
Photograph
Building Sketch Building Photo
(Click sketch for bigger image)




Copyright © 2022 Durham County, North Carolina.