Building Summary

Data last updated on: 4/2/2026     Ownership current as of: 3/30/2026     Tax Year: 2026
REID 180090

PIN # 0834-17-6498

Location Address Property Description
1 WARBLER LN ENO TRACE/PH:01/LT#309 PL:000114-000048
   
Property Owner Owner's Mailing Address
GUERIN, HAILEY MARIE
1 WARBLER LN
DURHAM NC 27712
Parcel
Buildings
Misc Improvements
Land
Deeds
Notes
Sales
Photos
Map
Building Location Address
1 WARBLER LN
Building Description
RESFR-RES-FRM-OR-EQ
Card   of  1
Bldg Type RESIDENTIAL
Units 1
Living Area (SQFT) 1710
Number of Stories 2.00
Style CON-CONVENTIONAL
Foundation 04-P-FOOTING/CRWL-SP
Exterior 09-HARD-B/CEMENTBRD
Const Type
Heating 06-HEAT-PUMP
Air Cond
Plumbing Baths (Full):   2
Baths (Half):   1
Extra Fixtures:   0
Total Plumbing Fixtures:   8 
Bedrooms 3
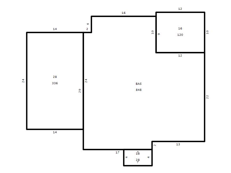
Main Body (SQFT) 848
Year Built 1988
Additions 5
Effective Year 1988
Remodeled 0
Interior Adj.
Other Features
Building Total & Improvement Details

Grade B+ 135%
Percentage Complete 100
Total Adjusted Replacement Cost New $423,537
Physical Depreciation (% Bad) 0%
Depreciated Value $300,711
Economic Depreciation (% Bad) 0%
Functional Depreciation (% Bad) 0%
Total Depreciated Value $300,711
Market Area Factor 1.00
Building Value $300,711
Misc Improvements Value $1,261
Total Improvement Value $301,972

Assessed Land Value $71,300
   
Assessed Total Value $373,272



Addition Summary 
StoryTypeCodeArea
1.00 Frame Deck 16 120
1.00 Covered Porch 18 28
1.00 Garage 28 336
1.00 Res Frame 2Nd Flr FR02 694
1.00 Res Frm 2Nd Flr Over Garg FR02 168
 
Other Improvements 
UnitsDescriptionItemCodeYear% BadValue
12x12 DIMENSIONS Deck 1989 60 1261
 


Building Sketch
Photograph
Building Sketch Building Photo
(Click sketch for bigger image)




Copyright © 2022 Durham County, North Carolina.