Building Summary

Data last updated on: 4/2/2026     Ownership current as of: 3/30/2026     Tax Year: 2026
REID 180166

PIN # 0834-27-7530

Location Address Property Description
4714 LAZYRIVER DR ENO TRACE/PH:03/LT#028 PL:000116-000166
   
Property Owner Owner's Mailing Address
SHAW, MEGAN T;HAYNES, BRANDON TAYLOR
4714 LAZYRIVER DR
DURHAM NC 27712
Parcel
Buildings
Misc Improvements
Land
Deeds
Notes
Sales
Photos
Map
Building Location Address
4714 LAZYRIVER DR
Building Description
RESFR-RES-FRM-OR-EQ
Card   of  1
Bldg Type RESIDENTIAL
Units 1
Living Area (SQFT) 1550
Number of Stories 2.00
Style COL-COLONIAL
Foundation 04-P-FOOTING/CRWL-SP
Exterior 09-HARD-B/CEMENTBRD
Const Type
Heating 05-PACKAGE-HEAT/COOL
Air Cond
Plumbing Baths (Full):   2
Baths (Half):   1
Extra Fixtures:   0
Total Plumbing Fixtures:   8 
Bedrooms 3
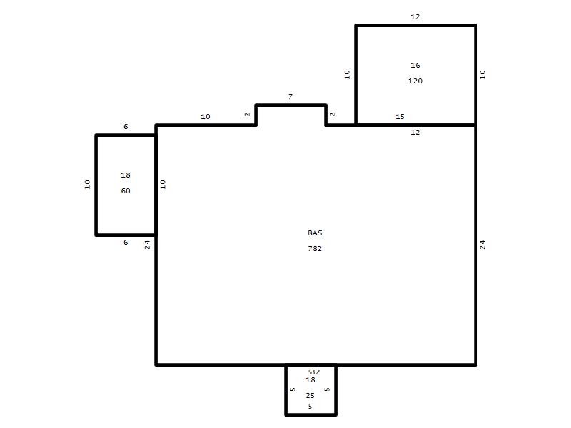
Main Body (SQFT) 782
Year Built 1993
Additions 4
Effective Year 1993
Remodeled 0
Interior Adj.
Other Features
Building Total & Improvement Details

Grade B+ 135%
Percentage Complete 100
Total Adjusted Replacement Cost New $372,817
Physical Depreciation (% Bad) 0%
Depreciated Value $275,885
Economic Depreciation (% Bad) 0%
Functional Depreciation (% Bad) 0%
Total Depreciated Value $275,885
Market Area Factor 1.00
Building Value $275,885
Misc Improvements Value
Total Improvement Value $275,885

Assessed Land Value $75,325
   
Assessed Total Value $351,210



Addition Summary 
StoryTypeCodeArea
1.00 Frame Deck 16 120
1.00 Covered Porch 18 60
1.00 Covered Porch 18 25
1.00 Res Frame 2Nd Flr FR02 768
 
Other Improvements 
UnitsDescriptionItemCodeYear% BadValue
8x12 DIMENSIONS Shed Personal Property 2000 75
 


Building Sketch
Photograph
Building Sketch Building Photo
(Click sketch for bigger image)




Copyright © 2022 Durham County, North Carolina.