Building Summary

Data last updated on: 4/3/2026     Ownership current as of: 3/30/2026     Tax Year: 2026
REID 100814

PIN # 0822-45-7654

Location Address Property Description
1218 SEDGEFIELD ST PROP-SEARS/LT#51 PL:00005A-000007
   
Property Owner Owner's Mailing Address
AMOS, JOSEPH;AMOS, WILLIAM E
1218 SEDGEFIELD ST
DURHAM NC 27705
Parcel
Buildings
Misc Improvements
Land
Deeds
Notes
Sales
Photos
Map
Building Location Address
1218 SEDGEFIELD ST
Building Description
MULMS-BLT-2/3-MLT-MS
Card   of  1
Bldg Type RESIDENTIAL
Units 1
Living Area (SQFT) 3728
Number of Stories 1.00
Style SEM-S-DTCH-VERT-SPLT
Foundation 06-BASEMENT
Exterior 02-BRICK
Const Type
Heating 05-PACKAGE-HEAT/COOL
Air Cond
Plumbing Baths (Full):   3
Baths (Half):   0
Extra Fixtures:   0
Total Plumbing Fixtures:   9 
Bedrooms 5
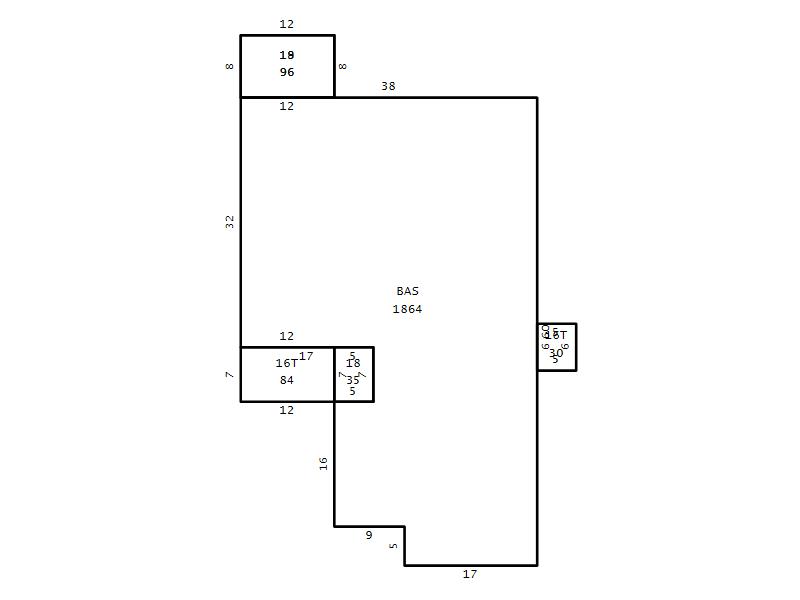
Main Body (SQFT) 1864
Year Built 1930
Additions 6
Effective Year 1930
Remodeled 0
Interior Adj.
Other Features
Building Total & Improvement Details

Grade C+ 110%
Percentage Complete 100
Total Adjusted Replacement Cost New $524,908
Physical Depreciation (% Bad) 0%
Depreciated Value $288,699
Economic Depreciation (% Bad) 35%
Functional Depreciation (% Bad) 0%
Total Depreciated Value $187,654
Market Area Factor 1.00
Building Value $187,654
Misc Improvements Value
Total Improvement Value $187,654

Assessed Land Value $252,875
   
Assessed Total Value $440,529



Addition Summary 
StoryTypeCodeArea
1.00 Terrace/Raised Patio 16T 84
1.00 Screen Porch 19 96
1.00 Covered Porch 18 96
1.00 Covered Porch 18 35
1.00 Terrace/Raised Patio 16T 30
1.00 Finished Basement 14 1864
 
Other Improvements 
 


Building Sketch
Photograph
Building Sketch Building Photo
(Click sketch for bigger image)




Copyright © 2022 Durham County, North Carolina.