Building Summary

Data last updated on: 4/2/2026     Ownership current as of: 3/30/2026     Tax Year: 2026
REID 108139

PIN # 0811-94-6173

Location Address Property Description
2402 WRIGHTWOOD AVE PROP-TOWN RANCH/LT#05 PL:00031B-000059
   
Property Owner Owner's Mailing Address
NOEL, CRYSTAL;MCPHAIL-SNYDER, CALVIN
2402 WRIGHTWOOD AVE
DURHAM NC 27705
Parcel
Buildings
Misc Improvements
Land
Deeds
Notes
Sales
Photos
Map
Building Location Address
2402 WRIGHTWOOD AVE
Building Description
RESMS-RES-MS-OR-EQ
Card   of  1
Bldg Type RESIDENTIAL
Units 1
Living Area (SQFT) 2346
Number of Stories 1.00
Style RAN-RANCH
Foundation 06-BASEMENT
Exterior 02-BRICK
Const Type
Heating 05-PACKAGE-HEAT/COOL
Air Cond
Plumbing Baths (Full):   2
Baths (Half):   1
Extra Fixtures:   0
Total Plumbing Fixtures:   8 
Bedrooms 3
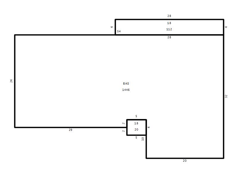
Main Body (SQFT) 1446
Year Built 1958
Additions 4
Effective Year 1958
Remodeled 0
Interior Adj.
Other Features
Building Total & Improvement Details

Grade C+15 115%
Percentage Complete 100
Total Adjusted Replacement Cost New $411,740
Physical Depreciation (% Bad) 0%
Depreciated Value $308,805
Economic Depreciation (% Bad) 0%
Functional Depreciation (% Bad) 0%
Total Depreciated Value $308,805
Market Area Factor 1.00
Building Value $308,805
Misc Improvements Value $2,047
Total Improvement Value $310,852

Assessed Land Value $393,300
   
Assessed Total Value $704,152



Addition Summary 
StoryTypeCodeArea
1.00 Covered Porch 18 112
1.00 Covered Porch 18 20
1.00 Unfinished Basement 10 485
1.00 Finished Basement 14 900
 
Other Improvements 
UnitsDescriptionItemCodeYear% BadValue
12x20 DIMENSIONS Carport w/Floor 1958 75 2047
 


Building Sketch
Photograph
Building Sketch Building Photo
(Click sketch for bigger image)




Copyright © 2022 Durham County, North Carolina.