Building Summary

Data last updated on: 4/2/2026     Ownership current as of: 3/30/2026     Tax Year: 2026
REID 108160

PIN # 0811-83-7992

Location Address Property Description
2433 WRIGHTWOOD AVE DUKE UNIV HOMESITES/SEC:3 /LT#27 PL:000031-000045
   
Property Owner Owner's Mailing Address
HANCHEY, MATTHEW FREDERICK;HANCHEY, MARY ELIZABETH HILL
2433 WRIGHTWOOD AVE
DURHAM NC 27705
Parcel
Buildings
Misc Improvements
Land
Deeds
Notes
Sales
Photos
Map
Building Location Address
2433 WRIGHTWOOD AVE
Building Description
RESMS-RES-MS-OR-EQ
Card   of  1
Bldg Type RESIDENTIAL
Units 1
Living Area (SQFT) 2998
Number of Stories 1.00
Style RAN-RANCH
Foundation 06-BASEMENT
Exterior 02-BRICK
Const Type
Heating 05-PACKAGE-HEAT/COOL
Air Cond
Plumbing Baths (Full):   3
Baths (Half):   1
Extra Fixtures:   0
Total Plumbing Fixtures:   11 
Bedrooms 4
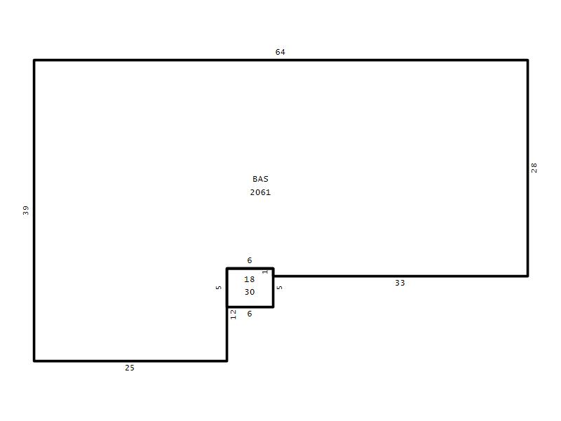
Main Body (SQFT) 2061
Year Built 1958
Additions 2
Effective Year 1958
Remodeled 0
Interior Adj.
Other Features
Building Total & Improvement Details

Grade C+ 110%
Percentage Complete 100
Total Adjusted Replacement Cost New $471,940
Physical Depreciation (% Bad) 0%
Depreciated Value $259,567
Economic Depreciation (% Bad) 0%
Functional Depreciation (% Bad) 0%
Total Depreciated Value $259,567
Market Area Factor 1.00
Building Value $259,567
Misc Improvements Value
Total Improvement Value $259,567

Assessed Land Value $470,250
   
Assessed Total Value $729,817



Addition Summary 
StoryTypeCodeArea
1.00 Covered Porch 18 30
1.00 Finished Basement 14 937
 
Other Improvements 
 


Building Sketch
Photograph
Building Sketch Building Photo
(Click sketch for bigger image)




Copyright © 2022 Durham County, North Carolina.