Building Summary

Data last updated on: 4/2/2026     Ownership current as of: 3/30/2026     Tax Year: 2026
REID 180785

PIN # 0824-46-0921

Location Address Property Description
237 LATTA RD LOCHAVEN HILLS/SEC:02/LT# 173/LT#172 PT PL:00031B-000096
   
Property Owner Owner's Mailing Address
FLORES, MANUEL
237 LATTA RD
DURHAM NC 27712
Parcel
Buildings
Misc Improvements
Land
Deeds
Notes
Sales
Photos
Map
Building Location Address
237 LATTA RD
Building Description
RESMS-RES-MS-OR-EQ
Card   of  1
Bldg Type RESIDENTIAL
Units 1
Living Area (SQFT) 1477
Number of Stories 1.00
Style RAN-RANCH
Foundation 04-P-FOOTING/CRWL-SP
Exterior 02-BRICK
Const Type
Heating 05-PACKAGE-HEAT/COOL
Air Cond
Plumbing Baths (Full):   2
Baths (Half):   0
Extra Fixtures:   0
Total Plumbing Fixtures:   6 
Bedrooms 3
Main Body (SQFT) 1477
Year Built 1962
Additions 5
Effective Year 1962
Remodeled 0
Interior Adj.
Other Features
Building Total & Improvement Details

Grade C+ 110%
Percentage Complete 100
Total Adjusted Replacement Cost New $378,156
Physical Depreciation (% Bad) 0%
Depreciated Value $211,767
Economic Depreciation (% Bad) 0%
Functional Depreciation (% Bad) 0%
Total Depreciated Value $211,767
Market Area Factor 1.00
Building Value $211,767
Misc Improvements Value $7,665
Total Improvement Value $219,432

Assessed Land Value $103,125
   
Assessed Total Value $322,557



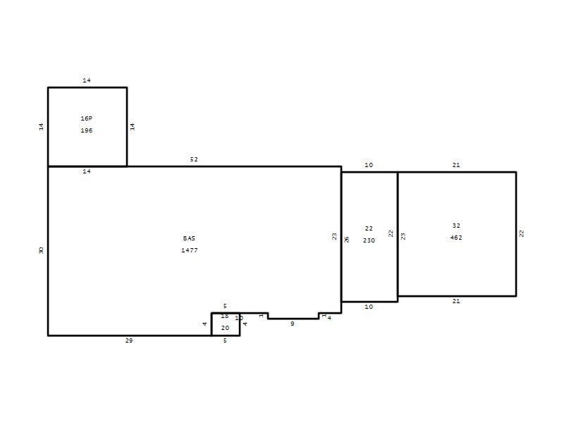
Addition Summary 
StoryTypeCodeArea
1.00 Patio 16P 196
1.00 Covered Porch 18 20
1.00 Enclosed Porch 22 230
1.00 Storage Utility 32 462
1.00 Unfinished Basement 10 870
 
Other Improvements 
UnitsDescriptionItemCodeYear% BadValue
200 SIZE Utility Building RSF 2007 30 3931
20x20 DIMENSIONS Garage Frame 1962 75 3734
 


Building Sketch
Photograph
Building Sketch Building Photo
(Click sketch for bigger image)




Copyright © 2022 Durham County, North Carolina.